Oegstgeest – Zilverstein 109

Zilverstein 109

2342 BL

OEGSTGEEST

€ 355.000,-
k.k.

Modern en licht appartement in Oegstgeest met zonnig balkon op het zuiden.
In een rustige en groene wijk van Oegstgeest ligt dit moderne appartement uit 2014. Het is gelegen op een hoger woonniveau en biedt een comfortabel en energiezuinig thuis voor iedereen die op zoek is naar rust, licht en een praktische indeling. Dankzij het ruime balkon op het zuiden geniet je hier het hele jaar door van heerlijke zonnige momenten.

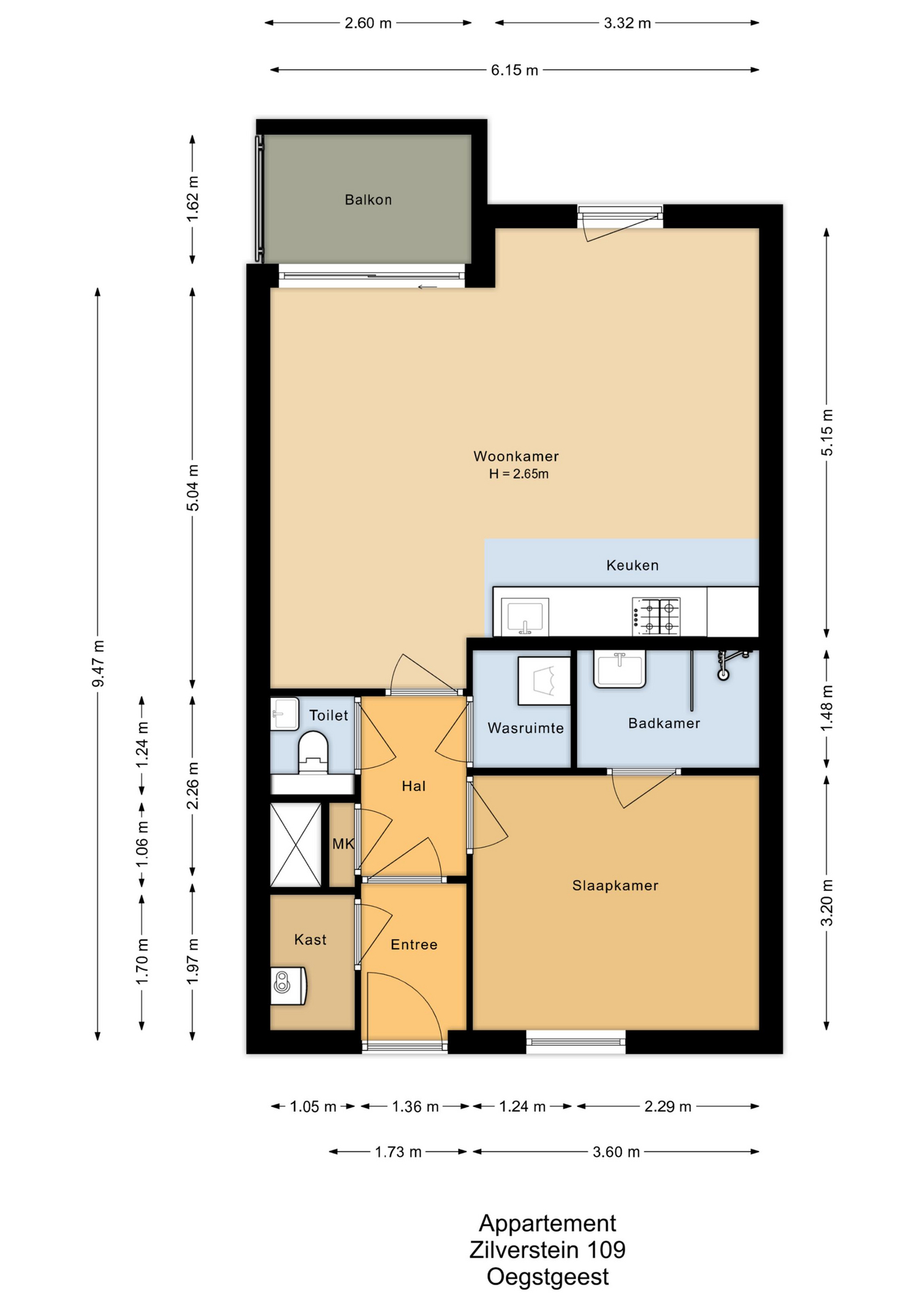
Indeling
Binnenkomst
Bij binnenkomst stap je de ruime hal binnen, waar meteen duidelijk wordt hoe verzorgd en modern het appartement is afgewerkt. Vanuit de hal zijn alle vertrekken bereikbaar.
In de hal vind je tevens de meterkast en twee handige inpandige bergingen, waarvan één is voorzien van een aansluiting voor de wasmachine en droger. Een ideale plek voor extra opslag en huishoudelijke apparatuur.
De separate wc met fontein is modern uitgevoerd en bevindt zich eveneens aan de hal.

Woonkamer & open keuken
De ruime woonkamer is een heerlijke lichte leefruimte met grote ramen en directe toegang tot het zonnige balkon. De open keuken sluit naadloos aan op het zitgedeelte en is uitgerust met inbouwapparatuur. Dankzij de open indeling voelt de ruimte extra groot en is het een perfecte plek voor zowel ontspannen avonden als gezellige diners.

Slaapkamer
De slaapkamer is goed van formaat en biedt meer dan voldoende ruimte voor een tweepersoonsbed en kastruimte. De kamer is rustig gelegen en prettig licht, ideaal om heerlijk tot rust te komen.

Badkamer
De nette badkamer is uitgevoerd met een douche en wastafelmeubel. De neutrale kleurstelling maakt het een tijdloze en frisse ruimte.

Balkon op het zuiden
Het grote pluspunt van dit appartement is het zonnige balkon op het zuiden. Hier geniet je van veel licht, privacy en een fijn uitzicht over de buurt. Een perfecte plek voor een kop koffie in de ochtend of een ontspannen borrel aan het einde van de dag.

Bijzonderheden:
• Bouwjaar 2014;
• Energiezuinig met energielabel A;
• Volledig geïsoleerd en voorzien van dubbele beglazing;
• Ruime woonkamer met open keuken;
• Groot balkon op het zuiden;
• Eén ruime slaapkamer;
• Moderne badkamer en aparte wc;
• Twee inpandige bergingen, waaronder één met wasmachineaansluiting;
• Lift aanwezig in het complex;
• Goede parkeergelegenheid, zowel openbaar als op privéterrein;
• Rustige ligging nabij winkels, parken, scholen en uitvalswegen.

Lees de volledige omschrijving

Kenmerken

Adres Zilverstein 109
Postcode 2342 BL
Plaats OEGSTGEEST
Koopprijs € 355.000,-
Bouwjaar 2014
Woonoppervlakte 59 m2
Kamers 2
Slaapkamers 1
Energielabel

Plattegronden

No data was found

Is dit jouw droomwoning?

Neem contact op voor meer informatie of een bezichtiging.

Met 6 NVM-makelaars en 7 ondersteuners is er altijd iemand voor je beschikbaar, zodat we je persoonlijk verder kunnen helpen.

Veelgestelde vragen

Ook bij het kopen van een woonhuis of appartement is er een zekere consumentenbescherming. Dit betekent dat je als koper ook na het sluiten van de koopovereenkomst nog zonder opgave van redenen van de koop kan afzien. Dit is de wettelijke bedenktijd en geldt voor een periode van 3 werkdagen. Deze periode gaat in op het moment dat je als koper een kopie van de volledig getekende koopovereenkomst hebt ontvangen. De periode kan niet eindigen in het weekend en er mag maximaal 1 weekenddag meegeteld worden. Stel je ontvangt op donderdag een kopie van de volledig getekende koopovereenkomst. Dan eindigt je bedenktijd op maandag om 23.59 uur. Vrijdag is dag 1, weekend is dag 2 en maandag is dag 3. Er is niet bepaald hoe je de bedenktijd moet inroepen. Een simpel belletje zou dus al voldoende zijn. Wij adviseren je om in het geval je de bedenktijd wilt inroepen dit altijd schriftelijk te doen. Zo kan er nooit betwist worden of je het hebt ingeroepen en of je op tijd was.
Bij de onderhandeling kun je ontbindende voorwaarden meenemen. Een bekende ontbindende voorwaarde is de ontbindende voorwaarde voor het rondkrijgen van je hypotheek, al dan niet met Nationale Hypotheek Garantie. De overeengekomen ontbindende voorwaarde(n) worden vastgelegd in de koopovereenkomst. Wanneer je een ontbindende voorwaarde voor het verkrijgen van je hypotheek bent overeengekomen dan is daaraan ook een bedrag gekoppeld. Stel je hebt een hypotheek van € 300.000,- nodig om de woning te kunnen betalen, dan staat in de koopovereenkomst dat je de koop kunt ontbinden als er geen geldverstrekker is die je € 300.000,- wil financieren. Dit zal je echter wel goed gedocumenteerd moeten doen. Je moet kunnen aantonen dat je al het redelijk mogelijke hebt gedaan om de benodigde financiering te verkrijgen en je moet een afwijzing van de hypotheekaanvraag kunnen overleggen. Een ontbindende voorwaarde is altijd voor een bepaalde termijn. Houd deze termijn goed in de gaten, is de datum verstreken dan kun je geen beroep meer doen op de betreffende ontbindende voorwaarde. Op dat moment is de koop definitief. Andere bekende ontbindende voorwaarden zijn een bouwkundige keuring, het verkrijgen van een toestemming of vergunning voor een verbouwing of bijvoorbeeld een asbestonderzoek.
Simpel gezegd zijn roerende zaken die zaken die niet aard en nagelvast zitten. Over sommige zaken bestaat hierover geen twijfel, bijvoorbeeld een keuken. Maar let op, want losse keukenapparatuur is dan weer wel een roerende zaak. Bij aankoop van een huis of appartement maak je afspraken over deze roerende zaken, zodat achteraf geen discussie kan ontstaan over wat er wel en niet bij de woning zou achterblijven. Wij gebruiken hiervoor een zogeheten ‘Lijst van Zaken’. Die laten wij voorafgaand aan de verkoop door de verkoper invullen en voegen we bij de verkoopdocumentatie. Zo weet je als koper voordat je overeenstemming hebt met de verkoper welke zaken er wel en niet achterblijven.  Soms staan er op deze lijst roerende zaken ‘ter overname’. Wanneer je die als koper niet overneemt of hierover expliciet afspraken maakt, zal de verkoper deze zaken meenemen.
De dag waarop je de sleutel ontvangt, noemen wij de datum van oplevering. Op die dag ga je samen met de verkoper naar de notaris waarbij het eigendom officieel wordt overgedragen. Dit is het moment waarop de koper de woning betaalt en de verkoper de koopsom ontvangt. Na deze officiële handeling zul je als koper de sleutels ontvangen. Er is geen vaste termijn waarbinnen je als koper de sleutels krijgt, dit is afhankelijk van wat je als koper en verkoper met elkaar hebt afgesproken. Deze datum wordt vastgelegd in de koopovereenkomst en is onderdeel van de onderhandeling.
Van der Meer team

We helpen je graag met al je woonwensen.

Verstuurd!

Je bericht is verstuurd en we nemen zo snel mogelijk contact met je op.