Lisse – Tulpenstraat 11

Tulpenstraat 11

2161 HS

LISSE

€ 485.000,-
k.k.

Deze charmante, sfeervolle en opvallend ruime jaren ’30 hoekwoning ligt op loopafstand van het gezellige centrum van Lisse, in een rustige straat. Een fijne plek voor wie comfortabel wil wonen.

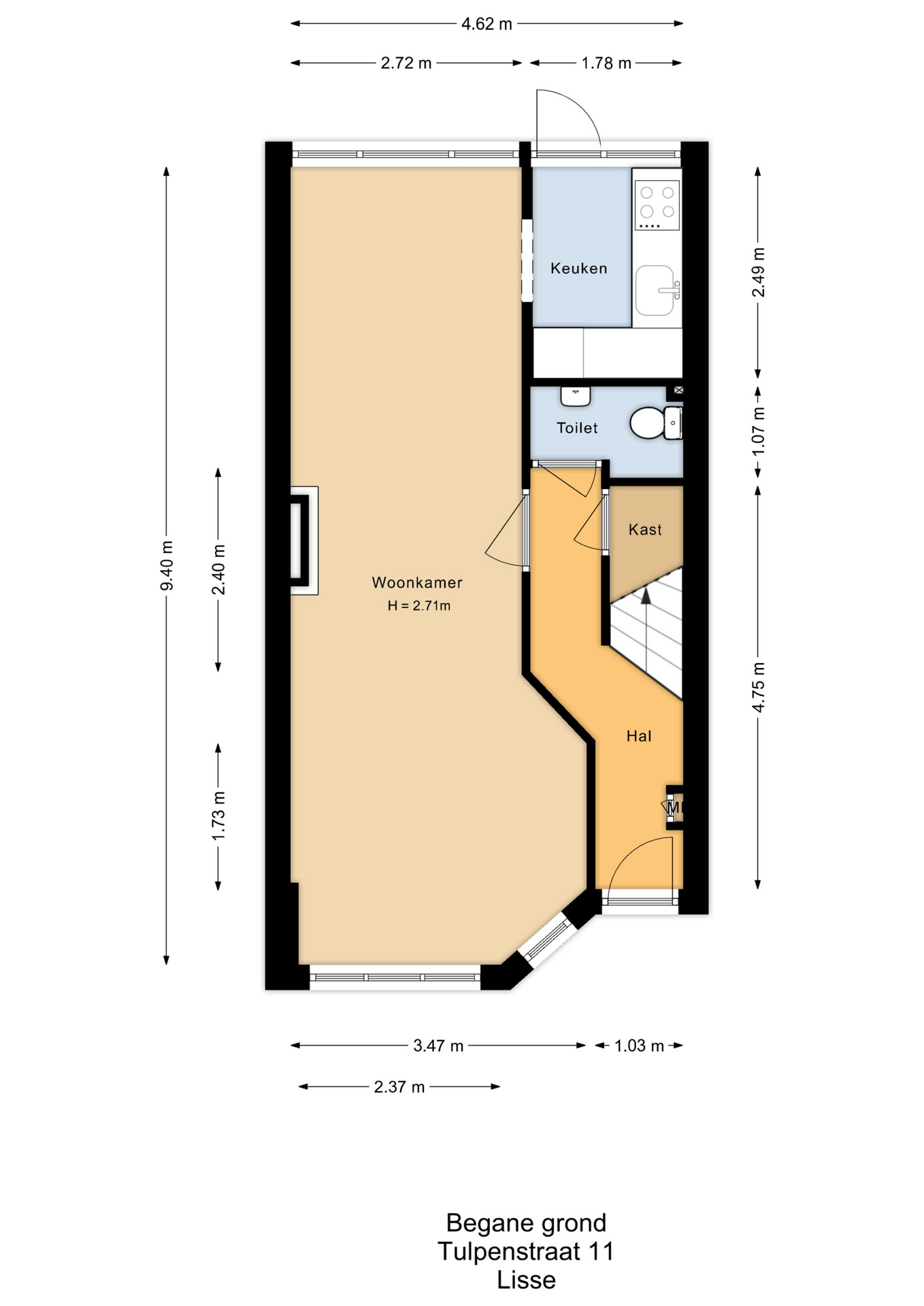
Indeling:
Aan de voorzijde van de woning ligt een goed onderhouden, groene voortuin die het geheel een vriendelijke uitstraling geeft. Binnenkomend via de hal vind je een kelderkast, garderobe en meterkast, het toilet met fontein en de trap naar de verdieping.

De woonkamer is sfeervol en knus, met een grote raampartij in de erker aan de voorzijde die zorgt voor veel licht en karakter. Vanuit de woonkamer heb je via een open doorgang toegang tot de keuken. De hal en woonkamer zijn voorzien van een mooie houten vloer. De bovenramen aan de voor- en achterzijde zorgen voor de klassieke jaren ’30 uitstraling.

De keuken is verzorgd en praktisch ingedeeld, met een combi-oven/magnetron, koelkast en kookplaat. Vanuit hier stap je zo de achtertuin in — een gezellige, goed onderhouden plek met een handige achterom. Achterin de tuin bevindt zich een modern tuinhuis met twee binnenruimtes, voorzien van elektra.

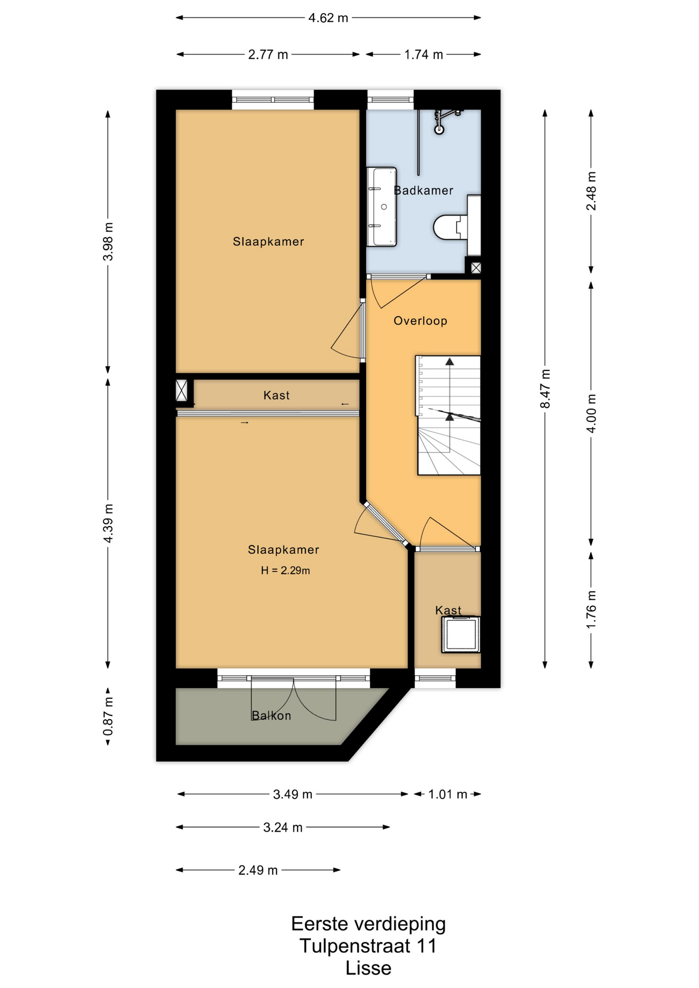
Op de eerste verdieping bevindt zich de overloop, een ruime slaapkamer aan de voorzijde met openslaande deuren naar het balkon, een tweede slaapkamer aan de achterzijde en de badkamer met inloopdouche, toilet en wastafelmeubel. Daarnaast is er aan de voorzijde een aparte wasruimte met aansluiting voor de wasmachine en droger. De slaapkamers en overloop zijn voorzien van een mooie houten vloer.

De tweede verdieping biedt extra woonruimte: een overloop met werkplek, een ingebouwde kast (ook bereikbaar vanuit de slaapkamer) en aan de achterzijde een slaapkamer met dakkapel, inclusief airconditioning. Bovendien is deze verdieping voorzien van knieschotten voor extra opbergruimte.

Een karakteristieke bouw, fijne indeling, leuke tuin en een ideale ligging — kortom: een woning waar je je direct thuis voelt!

De omgeving
De Tulpenstraat ligt aan de rand van het gezellige centrum van Lisse, met een veelzijdig winkelaanbod, horeca en bushaltes om de hoek. Achter de tuin ligt speeltuinvereniging “Marijke” — een groot voordeel voor gezinnen met kinderen: dichtbij en veilig bereikbaar.

Bijzonderheden
• Sfeervolle jaren ’30 woning, voorzien van diverse authentieke details zoals paneeldeuren en muurankers;
• 6 zonnepanelen;
• Energielabel C;
• In 2025 buiten volledig geschilderd door erkend schildersbedrijf;
• Volledig voorzien van dubbel glas;
• Achterom aanwezig (zeer praktisch voor fietsen/kinderen/tuin);
• CV-installatie Vaillant ecoTEC plus CW5 (2020).

Lees de volledige omschrijving

Kenmerken

Adres Tulpenstraat 11
Postcode 2161 HS
Plaats LISSE
Koopprijs € 485.000,-
Bouwjaar 1930
Woonoppervlakte 97 m2
Perceeloppervlakte 184 m2
Kamers 4
Slaapkamers 3
Energielabel

Plattegronden

No data was found

Is dit jouw droomwoning?

Neem contact op voor meer informatie of een bezichtiging.

Met 6 NVM-makelaars en 7 ondersteuners is er altijd iemand voor je beschikbaar, zodat we je persoonlijk verder kunnen helpen.

Veelgestelde vragen

Ook bij het kopen van een woonhuis of appartement is er een zekere consumentenbescherming. Dit betekent dat je als koper ook na het sluiten van de koopovereenkomst nog zonder opgave van redenen van de koop kan afzien. Dit is de wettelijke bedenktijd en geldt voor een periode van 3 werkdagen. Deze periode gaat in op het moment dat je als koper een kopie van de volledig getekende koopovereenkomst hebt ontvangen. De periode kan niet eindigen in het weekend en er mag maximaal 1 weekenddag meegeteld worden. Stel je ontvangt op donderdag een kopie van de volledig getekende koopovereenkomst. Dan eindigt je bedenktijd op maandag om 23.59 uur. Vrijdag is dag 1, weekend is dag 2 en maandag is dag 3. Er is niet bepaald hoe je de bedenktijd moet inroepen. Een simpel belletje zou dus al voldoende zijn. Wij adviseren je om in het geval je de bedenktijd wilt inroepen dit altijd schriftelijk te doen. Zo kan er nooit betwist worden of je het hebt ingeroepen en of je op tijd was.
Bij de onderhandeling kun je ontbindende voorwaarden meenemen. Een bekende ontbindende voorwaarde is de ontbindende voorwaarde voor het rondkrijgen van je hypotheek, al dan niet met Nationale Hypotheek Garantie. De overeengekomen ontbindende voorwaarde(n) worden vastgelegd in de koopovereenkomst. Wanneer je een ontbindende voorwaarde voor het verkrijgen van je hypotheek bent overeengekomen dan is daaraan ook een bedrag gekoppeld. Stel je hebt een hypotheek van € 300.000,- nodig om de woning te kunnen betalen, dan staat in de koopovereenkomst dat je de koop kunt ontbinden als er geen geldverstrekker is die je € 300.000,- wil financieren. Dit zal je echter wel goed gedocumenteerd moeten doen. Je moet kunnen aantonen dat je al het redelijk mogelijke hebt gedaan om de benodigde financiering te verkrijgen en je moet een afwijzing van de hypotheekaanvraag kunnen overleggen. Een ontbindende voorwaarde is altijd voor een bepaalde termijn. Houd deze termijn goed in de gaten, is de datum verstreken dan kun je geen beroep meer doen op de betreffende ontbindende voorwaarde. Op dat moment is de koop definitief. Andere bekende ontbindende voorwaarden zijn een bouwkundige keuring, het verkrijgen van een toestemming of vergunning voor een verbouwing of bijvoorbeeld een asbestonderzoek.
Simpel gezegd zijn roerende zaken die zaken die niet aard en nagelvast zitten. Over sommige zaken bestaat hierover geen twijfel, bijvoorbeeld een keuken. Maar let op, want losse keukenapparatuur is dan weer wel een roerende zaak. Bij aankoop van een huis of appartement maak je afspraken over deze roerende zaken, zodat achteraf geen discussie kan ontstaan over wat er wel en niet bij de woning zou achterblijven. Wij gebruiken hiervoor een zogeheten ‘Lijst van Zaken’. Die laten wij voorafgaand aan de verkoop door de verkoper invullen en voegen we bij de verkoopdocumentatie. Zo weet je als koper voordat je overeenstemming hebt met de verkoper welke zaken er wel en niet achterblijven.  Soms staan er op deze lijst roerende zaken ‘ter overname’. Wanneer je die als koper niet overneemt of hierover expliciet afspraken maakt, zal de verkoper deze zaken meenemen.
De dag waarop je de sleutel ontvangt, noemen wij de datum van oplevering. Op die dag ga je samen met de verkoper naar de notaris waarbij het eigendom officieel wordt overgedragen. Dit is het moment waarop de koper de woning betaalt en de verkoper de koopsom ontvangt. Na deze officiële handeling zul je als koper de sleutels ontvangen. Er is geen vaste termijn waarbinnen je als koper de sleutels krijgt, dit is afhankelijk van wat je als koper en verkoper met elkaar hebt afgesproken. Deze datum wordt vastgelegd in de koopovereenkomst en is onderdeel van de onderhandeling.
Van der Meer team

We helpen je graag met al je woonwensen.

Verstuurd!

Je bericht is verstuurd en we nemen zo snel mogelijk contact met je op.