Katwijk – De Krom 25

De Krom 25

2221 KK

KATWIJK

€ 429.000,-
k.k.

Royale eengezinswoning met vier grote slaapkamers en een perfect gelegen achtertuin op het zuiden! Door de praktische indeling met een tuingerichte woonkamer, de open keuken, ruime badkamer en de vier grote slaapkamers krijgt u een grote eengezinswoning voor een lange woonperiode.

Aantrekkelijke en kindvriendelijke ligging en gelegen op loopafstand van sportaccommodaties en nabij scholen, kinderdagverblijf en het winkelcentrum “Hoornesplein”. Uitvalswegen richting Leiden, Den Haag en Amsterdam (N-206 en A-44) zijn dichtbij.

Bouwjaar ca. 1980; gelegen op 125 m2 eigen grond met een aangebouwde stenen fietsenberging aan de voorzijde en een gunstig gelegen achtertuin en groot balkon op het zuiden. Hier kunt u de gehele dag optimaal van de zon genieten.
De woning heeft een keuken aan de voorzijde en is v.v. diverse inbouwapparatuur. Licht betegelde badkamer met inloopdouche, wastafel en 2e toilet. Vier grote slaapkamers zijn op de eerste en op de tweede etage aanwezig.

Het woonhuis is nagenoeg geheel v.v. dubbel glas. Centrale verwarming is aanwezig middels een Remeha combiketel uit 2014. Tevens zijn er in 2017 zes zonnepanelen geïnstalleerd waardoor u lagere energiekosten heeft! Gunstig Energielabel B!

Het woonhuis is met vier slaapkamers royaal van opzet; maar dient op meerdere zaken te worden gemoderniseerd. Hierdoor zeer geschikt om uw eigen woonstijl te creëren voor een fijne en lange woonperiode.

Indeling: entree, hal, licht betegeld toilet, tuingerichte woonkamer met plavuizenvloer, trapkast en open keuken met diverse inbouwapparatuur w.o. vaatwasser, koel-/vriescombinatie, oven, 5 pits gaskookplaat, afzuigkap en close in boiler.
1e Etage: overloop, grote ouderslaapkamer met toegang naar groot balkon aan de achterzijde, grote kinderslaapkamer met ruim groenrijk uitzicht aan de voorzijde, licht betegelde badkamer met inloopdouche, wastafelmeubel, 2e toilet en handdoekenradiator.
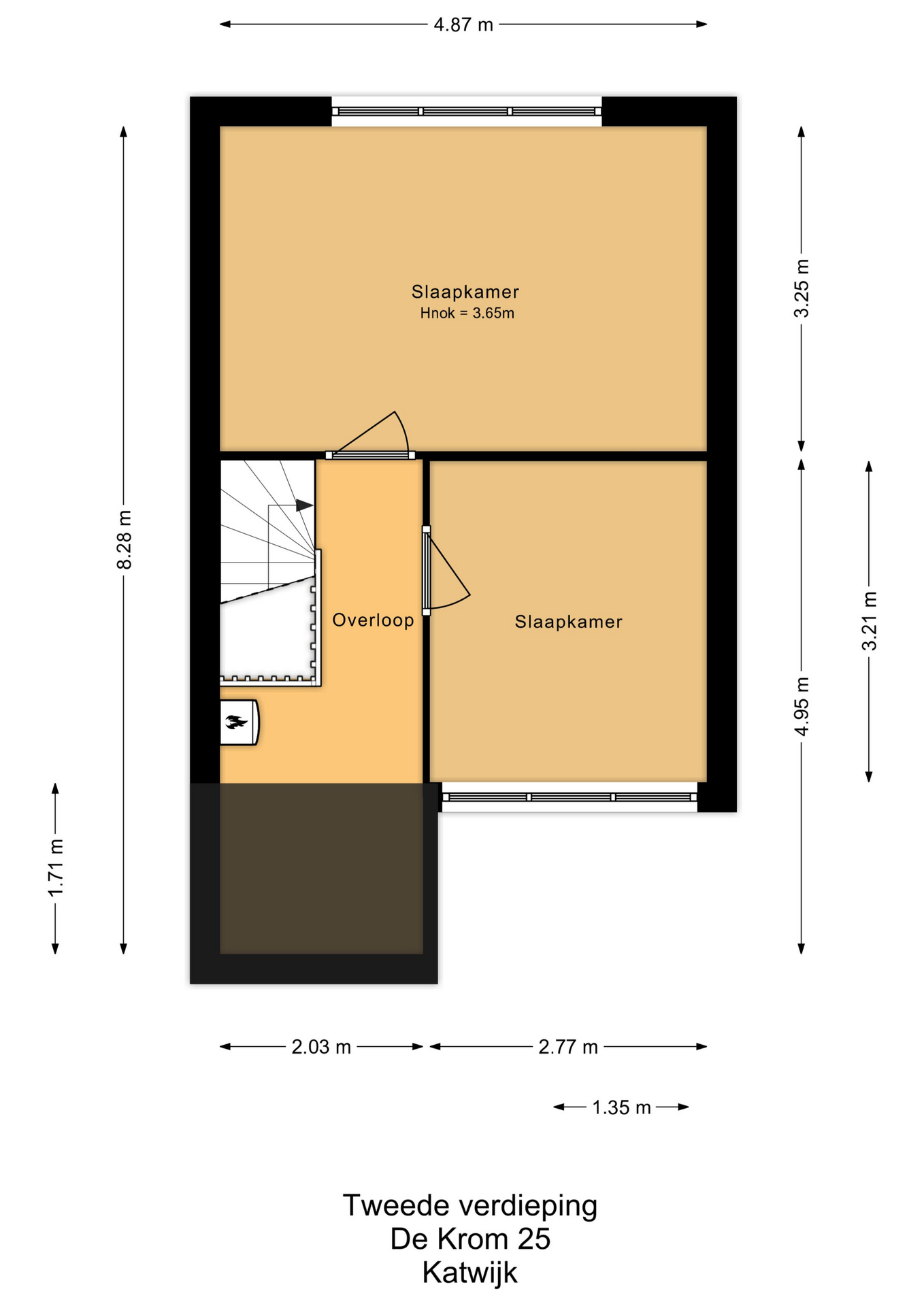
2e etage: overloop met CV Remeha combiketel, grote hoge kinderslaapkamer met ruim uitzicht aan de voorzijde, 4e grote hoge slaapkamer met laminaatvloer aan de achterzijde.

Buiten: stenen fietsenberging aan de voorzijde, goed formaat zonnig achtertuin op het zuiden.

Bijzonderheden:
• Royale eengezinswoning met vier grote slaapkamers;
• Gunstig gelegen achtertuin op het zuiden;
• Kindvriendelijke woonomgeving nabij sportaccommodaties en winkels;
• Gunstige ligging t.o.v. uitvalswegen Leiden, LUMC en Den Haag;
• Snelle oplevering is mogelijk;
• Zes zonnepanelen geïnstalleerd, een besparing op uw energiekosten;
• Energielabel B.

Interesse in deze royale eengezinswoning? Neem geheel vrijblijvend contact op voor een individuele bezichtiging ter plaatse.

Lees de volledige omschrijving

Kenmerken

Adres De Krom 25
Postcode 2221 KK
Plaats KATWIJK
Koopprijs € 429.000,-
Bouwjaar 1980
Woonoppervlakte 113 m2
Perceeloppervlakte 125 m2
Kamers 5
Slaapkamers 4
Energielabel

Plattegronden

JEL_7666klv
Marc van BeekRegister Makelaar en Register Taxateur

Is dit jouw droomwoning?

Neem contact op voor meer informatie of een bezichtiging.

Met 6 NVM-makelaars en 7 ondersteuners is er altijd iemand voor je beschikbaar, zodat we je persoonlijk verder kunnen helpen.

Veelgestelde vragen

Ook bij het kopen van een woonhuis of appartement is er een zekere consumentenbescherming. Dit betekent dat je als koper ook na het sluiten van de koopovereenkomst nog zonder opgave van redenen van de koop kan afzien. Dit is de wettelijke bedenktijd en geldt voor een periode van 3 werkdagen. Deze periode gaat in op het moment dat je als koper een kopie van de volledig getekende koopovereenkomst hebt ontvangen. De periode kan niet eindigen in het weekend en er mag maximaal 1 weekenddag meegeteld worden. Stel je ontvangt op donderdag een kopie van de volledig getekende koopovereenkomst. Dan eindigt je bedenktijd op maandag om 23.59 uur. Vrijdag is dag 1, weekend is dag 2 en maandag is dag 3. Er is niet bepaald hoe je de bedenktijd moet inroepen. Een simpel belletje zou dus al voldoende zijn. Wij adviseren je om in het geval je de bedenktijd wilt inroepen dit altijd schriftelijk te doen. Zo kan er nooit betwist worden of je het hebt ingeroepen en of je op tijd was.
Bij de onderhandeling kun je ontbindende voorwaarden meenemen. Een bekende ontbindende voorwaarde is de ontbindende voorwaarde voor het rondkrijgen van je hypotheek, al dan niet met Nationale Hypotheek Garantie. De overeengekomen ontbindende voorwaarde(n) worden vastgelegd in de koopovereenkomst. Wanneer je een ontbindende voorwaarde voor het verkrijgen van je hypotheek bent overeengekomen dan is daaraan ook een bedrag gekoppeld. Stel je hebt een hypotheek van € 300.000,- nodig om de woning te kunnen betalen, dan staat in de koopovereenkomst dat je de koop kunt ontbinden als er geen geldverstrekker is die je € 300.000,- wil financieren. Dit zal je echter wel goed gedocumenteerd moeten doen. Je moet kunnen aantonen dat je al het redelijk mogelijke hebt gedaan om de benodigde financiering te verkrijgen en je moet een afwijzing van de hypotheekaanvraag kunnen overleggen. Een ontbindende voorwaarde is altijd voor een bepaalde termijn. Houd deze termijn goed in de gaten, is de datum verstreken dan kun je geen beroep meer doen op de betreffende ontbindende voorwaarde. Op dat moment is de koop definitief. Andere bekende ontbindende voorwaarden zijn een bouwkundige keuring, het verkrijgen van een toestemming of vergunning voor een verbouwing of bijvoorbeeld een asbestonderzoek.
Simpel gezegd zijn roerende zaken die zaken die niet aard en nagelvast zitten. Over sommige zaken bestaat hierover geen twijfel, bijvoorbeeld een keuken. Maar let op, want losse keukenapparatuur is dan weer wel een roerende zaak. Bij aankoop van een huis of appartement maak je afspraken over deze roerende zaken, zodat achteraf geen discussie kan ontstaan over wat er wel en niet bij de woning zou achterblijven. Wij gebruiken hiervoor een zogeheten ‘Lijst van Zaken’. Die laten wij voorafgaand aan de verkoop door de verkoper invullen en voegen we bij de verkoopdocumentatie. Zo weet je als koper voordat je overeenstemming hebt met de verkoper welke zaken er wel en niet achterblijven.  Soms staan er op deze lijst roerende zaken ‘ter overname’. Wanneer je die als koper niet overneemt of hierover expliciet afspraken maakt, zal de verkoper deze zaken meenemen.
De dag waarop je de sleutel ontvangt, noemen wij de datum van oplevering. Op die dag ga je samen met de verkoper naar de notaris waarbij het eigendom officieel wordt overgedragen. Dit is het moment waarop de koper de woning betaalt en de verkoper de koopsom ontvangt. Na deze officiële handeling zul je als koper de sleutels ontvangen. Er is geen vaste termijn waarbinnen je als koper de sleutels krijgt, dit is afhankelijk van wat je als koper en verkoper met elkaar hebt afgesproken. Deze datum wordt vastgelegd in de koopovereenkomst en is onderdeel van de onderhandeling.
Van der Meer team

We helpen je graag met al je woonwensen.

Verstuurd!

Je bericht is verstuurd en we nemen zo snel mogelijk contact met je op.