Rijnsburg – Oranjelaan 21

Oranjelaan 21

2231 DE

RIJNSBURG

€ 439.000,-
k.k.

Riant en zeer verzorgd drie-kamer-appartement (lift aanwezig!) met een leuk uitzicht in het directe centrum van Rijnsburg. Geliefde rustige locatie met, van uit de woonkamer en balkon, een vriendelijk uitzicht over fraaie representatieve herenhuizen.

Gelegen in het directe centrum van Rijnsburg midden in het winkelcentrum en op loopafstand van supermarkt, een bakker en een slager. Goede parkeervoorzieningen zijn in de directe omgeving aanwezig.

Gunstige ligging t.o.v. uitvalswegen (A-44) en goede bus-verbindingen naar het NS-station. Tevens gelegen op fietsafstand van het NS-station, LUMC, Bio-Sciencepark, het centrum van Leiden en het strand.

Het kleinschalige complex is recent gerenoveerd met nieuwe kunststof kozijnen v.v. HR++ glas en beschikt ook over een beveiligd entree met een lift. Een fietsenberging, v.v. elektra, is in het complex op de begane grond aanwezig.

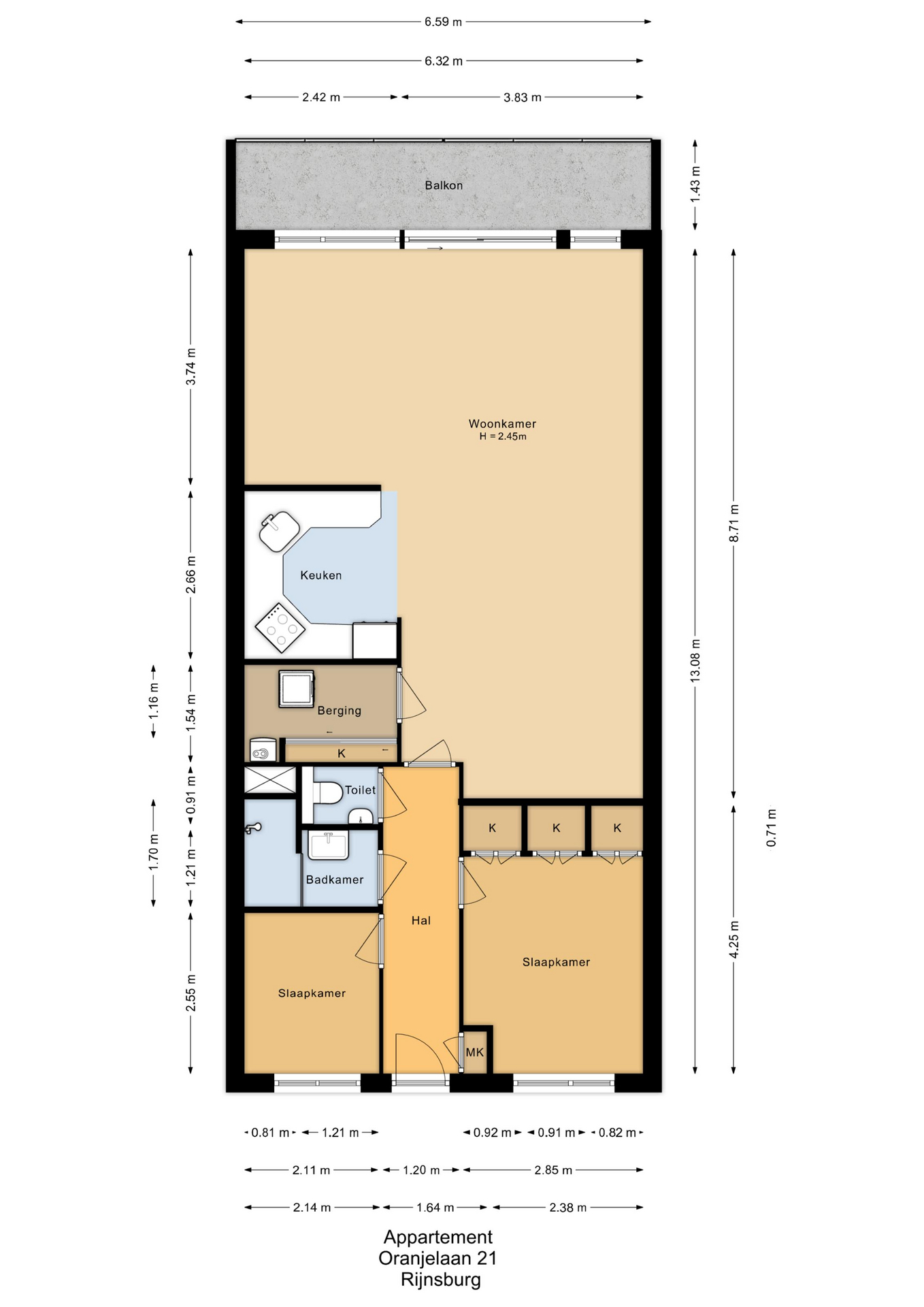
Kenmerkend voor deze woning is de royale woonkamer (ca. 40 m2) v.v. een goed verzorgde keuken met inbouwapparatuur, een gestuukt plafond en een nieuwe fraaie schuifpui naar een goed formaat balkon over de volle breedte. Door de nieuwe kozijnen met HR++ glas en een nieuwe CV Remeha combiketel uit 2025 heeft u een gunstig energielabel A met gunstig energieverbruik!

Begane grond: Beveiligd entree met liftinstallatie.
Indeling: entree, gang, goed formaat ouderslaapkamer met vaste kastenwand, 2e slaapkamer, licht betegelde badkamer inloopdouche, wastafelmeubel en handdoekenradiator, apart vrij hangend toilet, afsluitbare was-/droog-, stookruimte met CV Remeha combiketel uit 2025, royale woonkamer met plavuizenvloer, nieuwe schuifpui naar balkon op het westen, gestuukt plafond, open keuken in lichte kleurstelling met granieten aanrechtblad en diverse inbouwapparatuur wo. vaatwasser, combi-oven, keramische kookplaat, afzuigkap en een koel-/vriescombinatie.

Bijzonderheden:
• Riant drie kamer appartement in het directe winkelcentrum;
• Royale woonkamer met nieuwe schuifpui naar goed formaat balkon;
• Goed verzorgde keuken met granieten aanrechtblad;
• Fietsenberging met elektra is aanwezig;
• Lift is aanwezig;
• Actieve VvE met een maandelijkse bijdrage van € 337,-;
• Gelegen in het directe winkelcentrum en op loopafstand van alle winkels;
• Op fietsafstand van NS-station, LUMC en centrum Leiden;
• Geheel v.v. nieuwe kunststof kozijnen met HR++ glas;
• Nieuwe CV Remeha combi ketel;
• Gunstig energieverbruik met energielabel A.

Kortom een fijn drie kamer appartement met een gunstig energielabel gelegen op loopafstand van het winkelcentrum.
Interesse? Maak vrijblijvend een bezichtiging ter plaatse.

Lees de volledige omschrijving

Kenmerken

Adres Oranjelaan 21
Postcode 2231 DE
Plaats RIJNSBURG
Koopprijs € 439.000,-
Bouwjaar 1987
Woonoppervlakte 82 m2
Kamers 3
Slaapkamers 2
Energielabel

Plattegronden

JEL_5157
Marc van BeekRegister Makelaar en Register Taxateur

Is dit jouw droomwoning?

Neem contact op voor meer informatie of een bezichtiging.

Met 6 NVM-makelaars en 7 ondersteuners is er altijd iemand voor je beschikbaar, zodat we je persoonlijk verder kunnen helpen.

Veelgestelde vragen

Ook bij het kopen van een woonhuis of appartement is er een zekere consumentenbescherming. Dit betekent dat je als koper ook na het sluiten van de koopovereenkomst nog zonder opgave van redenen van de koop kan afzien. Dit is de wettelijke bedenktijd en geldt voor een periode van 3 werkdagen. Deze periode gaat in op het moment dat je als koper een kopie van de volledig getekende koopovereenkomst hebt ontvangen. De periode kan niet eindigen in het weekend en er mag maximaal 1 weekenddag meegeteld worden. Stel je ontvangt op donderdag een kopie van de volledig getekende koopovereenkomst. Dan eindigt je bedenktijd op maandag om 23.59 uur. Vrijdag is dag 1, weekend is dag 2 en maandag is dag 3. Er is niet bepaald hoe je de bedenktijd moet inroepen. Een simpel belletje zou dus al voldoende zijn. Wij adviseren je om in het geval je de bedenktijd wilt inroepen dit altijd schriftelijk te doen. Zo kan er nooit betwist worden of je het hebt ingeroepen en of je op tijd was.
Bij de onderhandeling kun je ontbindende voorwaarden meenemen. Een bekende ontbindende voorwaarde is de ontbindende voorwaarde voor het rondkrijgen van je hypotheek, al dan niet met Nationale Hypotheek Garantie. De overeengekomen ontbindende voorwaarde(n) worden vastgelegd in de koopovereenkomst. Wanneer je een ontbindende voorwaarde voor het verkrijgen van je hypotheek bent overeengekomen dan is daaraan ook een bedrag gekoppeld. Stel je hebt een hypotheek van € 300.000,- nodig om de woning te kunnen betalen, dan staat in de koopovereenkomst dat je de koop kunt ontbinden als er geen geldverstrekker is die je € 300.000,- wil financieren. Dit zal je echter wel goed gedocumenteerd moeten doen. Je moet kunnen aantonen dat je al het redelijk mogelijke hebt gedaan om de benodigde financiering te verkrijgen en je moet een afwijzing van de hypotheekaanvraag kunnen overleggen. Een ontbindende voorwaarde is altijd voor een bepaalde termijn. Houd deze termijn goed in de gaten, is de datum verstreken dan kun je geen beroep meer doen op de betreffende ontbindende voorwaarde. Op dat moment is de koop definitief. Andere bekende ontbindende voorwaarden zijn een bouwkundige keuring, het verkrijgen van een toestemming of vergunning voor een verbouwing of bijvoorbeeld een asbestonderzoek.
Simpel gezegd zijn roerende zaken die zaken die niet aard en nagelvast zitten. Over sommige zaken bestaat hierover geen twijfel, bijvoorbeeld een keuken. Maar let op, want losse keukenapparatuur is dan weer wel een roerende zaak. Bij aankoop van een huis of appartement maak je afspraken over deze roerende zaken, zodat achteraf geen discussie kan ontstaan over wat er wel en niet bij de woning zou achterblijven. Wij gebruiken hiervoor een zogeheten ‘Lijst van Zaken’. Die laten wij voorafgaand aan de verkoop door de verkoper invullen en voegen we bij de verkoopdocumentatie. Zo weet je als koper voordat je overeenstemming hebt met de verkoper welke zaken er wel en niet achterblijven.  Soms staan er op deze lijst roerende zaken ‘ter overname’. Wanneer je die als koper niet overneemt of hierover expliciet afspraken maakt, zal de verkoper deze zaken meenemen.
De dag waarop je de sleutel ontvangt, noemen wij de datum van oplevering. Op die dag ga je samen met de verkoper naar de notaris waarbij het eigendom officieel wordt overgedragen. Dit is het moment waarop de koper de woning betaalt en de verkoper de koopsom ontvangt. Na deze officiële handeling zul je als koper de sleutels ontvangen. Er is geen vaste termijn waarbinnen je als koper de sleutels krijgt, dit is afhankelijk van wat je als koper en verkoper met elkaar hebt afgesproken. Deze datum wordt vastgelegd in de koopovereenkomst en is onderdeel van de onderhandeling.
Van der Meer team

We helpen je graag met al je woonwensen.

Verstuurd!

Je bericht is verstuurd en we nemen zo snel mogelijk contact met je op.