No data was found
Is dit jouw droomwoning?
Neem contact op voor meer informatie of een bezichtiging.
Met 6 NVM-makelaars en 7 ondersteuners is er altijd iemand voor je beschikbaar, zodat we je persoonlijk verder kunnen helpen.
Wonen aan het water met een eigen inpandig botenhuis, vijf slaapkamers en zonnige buitenruimtes.
In de jonge en geliefde wijk Oegstgeest aan de Rijn staat dit moderne en uitstekend onderhouden herenhuis uit 2020.
Een woning die zich onderscheidt door zijn bijzondere opzet: onder het huis ligt namelijk een inpandig botenhuis, waardoor je letterlijk vanuit huis het water op vaart.
Binnen vind je een speelse split-level indeling met een ruime woonkamer, een royale woonkeuken, vijf slaapkamers en twee badkamers.
Aan buitenruimte ook geen gebrek: aan zowel de voor- als achterzijde ligt een balkon over de volledige breedte van de woning en in de voortuin, gelegen op het zuidwesten is verrassend veel ruimte voor een gezellig zitje.
Een ideaal familiehuis voor wie graag aan het water woont en gemak en stijl belangrijk vindt.
Begane grond
Via de verzorgde voortuin kom je binnen in de ruime hal met meterkast, toilet en een praktische inpandige berging.
Vanuit de hal is er direct zicht op één van de meest bijzondere onderdelen van deze woning: via een tussendeur en een korte trap bereik je het inpandige botenhuis.
Hier ligt je boot letterlijk onder het huis en vaar je zo het water op.
Woonverdieping (split-level)
Een halve trap omhoog kom je in de woonkamer. Deze lichte leefruimte ligt aan de achterzijde van de woning en grenst direct aan het balkon aan het water, een heerlijke plek om in de ochtend rustig wakker te worden met een kop koffie.
Vanuit de woonkamer loop je via een paar treden naar de hoger gelegen woonkeuken. De moderne keuken is ruim opgezet en voorzien van een kookeiland en diverse inbouwapparatuur. Er is hier volop plek voor een grote eettafel, waardoor dit een fijne plek is om samen te koken, eten en borrelen.
Aan de voorzijde bevindt zich nog een tweede balkon over de volledige breedte van de woning.
Eerste verdieping
Op deze verdieping bevinden zich drie slaapkamers en de eerste badkamer.
De badkamer is netjes en compleet uitgevoerd met een ligbad, inloopdouche en een wastafelmeubel. Daarnaast is er een apart toilet op de overloop.
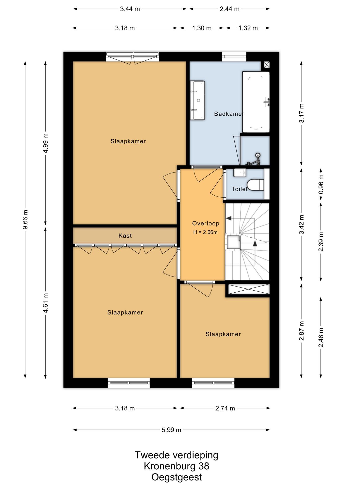
Tweede verdieping
De bovenste verdieping biedt nog eens twee ruime slaapkamers en een tweede badkamer met inloopdouche en wastafel. Daarnaast is hier een keurig afgewerkte wasruimte aanwezig. Achter een aparte deur bevinden zich de aansluitingen voor wasmachine en droger en daarachter ligt nog een separate technische ruimte met de installaties van de woning. Alles is netjes weggewerkt en praktisch ingericht.
Buitenruimte
De woning beschikt over meerdere fijne buitenplekken.
Aan de achterzijde ligt een ruim balkon aan het water, terwijl aan de voorzijde een tweede balkon over de volledige breedte van de woning ligt. De voortuin op het zuidwesten biedt daarnaast voldoende ruimte voor een zitje, waardoor je hier heerlijk van de middag- en avondzon kunt genieten.
Bijzonderheden
• Modern en energiezuinig herenhuis, bouwjaar 2020;
• Uniek: inpandig botenhuis aan vaarwater;
• Maar liefst 5 slaapkamers en 2 badkamers;
• Balkon en voortuin op het zuidwesten;
• Terras op het noordoosten (ochtendzon);
• Royale split-level woonverdiepingen;
• Gelegen in een rustige, kindvriendelijke wijk;
• Dicht bij voorzieningen en uitvalswegen.
Met 6 NVM-makelaars en 7 ondersteuners is er altijd iemand voor je beschikbaar, zodat we je persoonlijk verder kunnen helpen.
Van Der Meer Makelaars gebruikt cookies en scripts van Google om uw gebruik van onze websites geanonimiseerd te analyseren, zodat we functionaliteit en effectiviteit kunnen aanpassen en advertenties kunnen tonen. Ook gebruiken we na aparte toestemming cookies en scripts van Facebook, Twitter, LinkedIn en Google om social media integratie op onze websites mogelijk te maken. Als u wilt aanpassen welke cookies en scripts we mogen gebruiken, kunt u hieronder uw instellingen wijzigen.