No data was found
Is dit jouw droomwoning?
Neem contact op voor meer informatie of een bezichtiging.
Met 6 NVM-makelaars en 7 ondersteuners is er altijd iemand voor je beschikbaar, zodat we je persoonlijk verder kunnen helpen.
Op aantrekkelijke en kindvriendelijke woonlocatie in de wijk ‘Vinkeveld’ gelegen, ruime eengezinswoning met stenen berging, parkeergelegenheid op eigen terrein en tuin op het westen. De woning grenst aan een groot plantsoen aan de achterzijde en heeft een gunstige ligging nabij winkelvoorzieningen, scholen, strand, duinwandelgebied alsmede de uitvalswegen naar de grote steden.
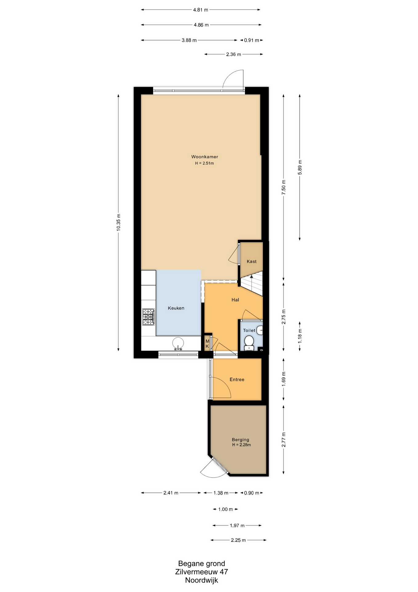
Indeling:
Entree, hal met meterkast en toiletruimte met wandcloset en fonteintje. Woonkamer met trapkast en openslaande deur naar de tuin. De open keuken bevindt zich aan de voorzijde en is voorzien van hoekopstelling met diverse inbouwapparatuur, te weten: 5-pits gaskookplaat, afzuigschouw, combi-oven, vaatwasser, koelkast en 3 laden vriezer.
1e verdieping:
Overloop, 1e en 2e (ouder)slaapkamer aan de achterzijde met deur naar balkon en 3e slaapkamer aan de voorzijde. Geheel betegelde badkamer met douchecabine, wandcloset en wastafelmeubel.
2e verdieping:
Ruime overloop met aansluiting wasapparatuur, 4e slaapkamer aan de achterzijde met grote dakkapel en opstelling c.v. combiketel (Vaillant, 2022).
Bijzonderheden:
• Woonkamer is voorzien van laminaat vloerdelen;
• Vrije ligging aan de voor- en achterzijde;
• Voorzien van 9 zonnepanelen;
• Parkeergelegenheid op eigen terrein en voldoende parkeerplaatsen in de directe omgeving.
Met 6 NVM-makelaars en 7 ondersteuners is er altijd iemand voor je beschikbaar, zodat we je persoonlijk verder kunnen helpen.
Van Der Meer Makelaars gebruikt cookies en scripts van Google om uw gebruik van onze websites geanonimiseerd te analyseren, zodat we functionaliteit en effectiviteit kunnen aanpassen en advertenties kunnen tonen. Ook gebruiken we na aparte toestemming cookies en scripts van Facebook, Twitter, LinkedIn en Google om social media integratie op onze websites mogelijk te maken. Als u wilt aanpassen welke cookies en scripts we mogen gebruiken, kunt u hieronder uw instellingen wijzigen.