Noordwijk – Wilhelminastraat 57

Wilhelminastraat 57

2201 KB

NOORDWIJK

€ 895.000,-
k.k.

Fraai karakteristiek 2-onder-1 kap herenhuis, gelegen op geliefde locatie midden in de oude dorpskern van Noordwijk-Binnen. Deze charmante woning is geheel gerenoveerd en heeft het comfort van nu maar met behoud van karakteristieke elementen, hierdoor heeft het zijn oorspronkelijke charme behouden. De woning beschikt over een riante leefruimte op de begane grond, 4 slaapkamers, 2 badkamers heeft een besloten zonnige tuin op het zuidwesten waar de heerlijke veranda staat voorzien van een groen dak. Kortom het ideale gezinshuis!

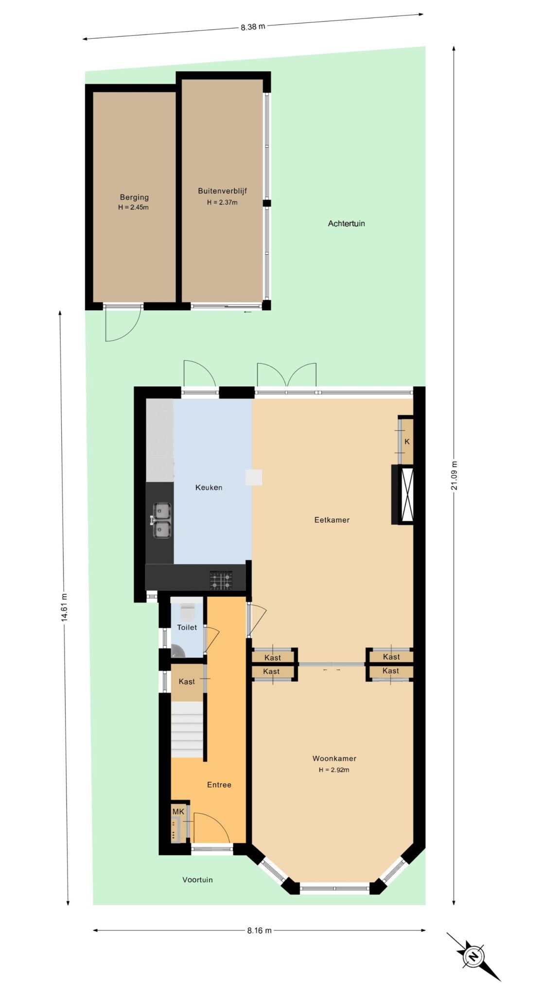
Indeling:
Entree, hal met moderne tegelvloer, meterkast, trapkast en toiletruimte met wandcloset en fonteintje. Living met erker aan de voorzijde. Middels fraaie originele en-suite deuren met glas-in-lood en vaste kasten aan weerszijde toegang tot de riante woonkeuken in L-opstelling voorzien diverse inbouwapparatuur, te weten: 4-pits gasfornuis en separate wok brander, oven en aparte magnetron, vaatwasser en koel/vriescombinatie. Vanuit de woonkeuken openslaande deuren én loopdeur naar de zonnige tuin. Deze tuin is heerlijk ingericht voor jong en oud. Lekker spelen, tafelen of samen eten.

1e verdieping:
Ruime overloop met bergkast met aansluiting voor wasapparatuur. 1e en 2e slaapkamer aan de voorzijde, waarvan 1 met openslaande deuren naar balkon. 3e ruime slaapkamer aan de achterzijde met openslaande deuren naar groot terras op het zuidwesten. Badkamer met metro-tegels, vloerverwarming, inloopdouche met regendouche, wastafelmeubel, wandcloset..

2e verdieping:
Deze etage is volledig ingericht als royale suite voor de ouders met aan de achterzijde een grote raampartij van plafond tot aan de grond met openslaande shutters, eigen badkamer voorzien van vloerverwarming, inloopdouche met regendouche, wastafelmeubel en wandcloset. Er is veel aandacht besteed aan bergruimte. Twee ruime inloopkasten als ook een algemene berging voor linnengoed. Tevens bevindt zich hier de technische ruimte met opstelling CV installatie.

Bijzonderheden:
• Originele paneeldeuren met glas-in-lood:
• Strak afgewerkte wanden en plafonds;
• Door de gehele woning fraaie houten vloerdelen;
• De badkamers zijn voorzien van vloerverwarming;
• De tuin met stenen berging en serre (met groen dak) ook bereikbaar via achterom.

Lees de volledige omschrijving

Kenmerken

Adres Wilhelminastraat 57
Postcode 2201 KB
Plaats NOORDWIJK
Koopprijs € 895.000,-
Bouwjaar 1923
Woonoppervlakte 171 m2
Perceeloppervlakte 165 m2
Kamers 6
Slaapkamers 4
Energielabel

Plattegronden

JEL_4547
Geert-Jan MoermanRegister Makelaar en Register Taxateur

Is dit jouw droomwoning?

Neem contact op voor meer informatie of een bezichtiging.

Met 6 NVM-makelaars en 7 ondersteuners is er altijd iemand voor je beschikbaar, zodat we je persoonlijk verder kunnen helpen.

Veelgestelde vragen

Ook bij het kopen van een woonhuis of appartement is er een zekere consumentenbescherming. Dit betekent dat je als koper ook na het sluiten van de koopovereenkomst nog zonder opgave van redenen van de koop kan afzien. Dit is de wettelijke bedenktijd en geldt voor een periode van 3 werkdagen. Deze periode gaat in op het moment dat je als koper een kopie van de volledig getekende koopovereenkomst hebt ontvangen. De periode kan niet eindigen in het weekend en er mag maximaal 1 weekenddag meegeteld worden. Stel je ontvangt op donderdag een kopie van de volledig getekende koopovereenkomst. Dan eindigt je bedenktijd op maandag om 23.59 uur. Vrijdag is dag 1, weekend is dag 2 en maandag is dag 3. Er is niet bepaald hoe je de bedenktijd moet inroepen. Een simpel belletje zou dus al voldoende zijn. Wij adviseren je om in het geval je de bedenktijd wilt inroepen dit altijd schriftelijk te doen. Zo kan er nooit betwist worden of je het hebt ingeroepen en of je op tijd was.
Bij de onderhandeling kun je ontbindende voorwaarden meenemen. Een bekende ontbindende voorwaarde is de ontbindende voorwaarde voor het rondkrijgen van je hypotheek, al dan niet met Nationale Hypotheek Garantie. De overeengekomen ontbindende voorwaarde(n) worden vastgelegd in de koopovereenkomst. Wanneer je een ontbindende voorwaarde voor het verkrijgen van je hypotheek bent overeengekomen dan is daaraan ook een bedrag gekoppeld. Stel je hebt een hypotheek van € 300.000,- nodig om de woning te kunnen betalen, dan staat in de koopovereenkomst dat je de koop kunt ontbinden als er geen geldverstrekker is die je € 300.000,- wil financieren. Dit zal je echter wel goed gedocumenteerd moeten doen. Je moet kunnen aantonen dat je al het redelijk mogelijke hebt gedaan om de benodigde financiering te verkrijgen en je moet een afwijzing van de hypotheekaanvraag kunnen overleggen. Een ontbindende voorwaarde is altijd voor een bepaalde termijn. Houd deze termijn goed in de gaten, is de datum verstreken dan kun je geen beroep meer doen op de betreffende ontbindende voorwaarde. Op dat moment is de koop definitief. Andere bekende ontbindende voorwaarden zijn een bouwkundige keuring, het verkrijgen van een toestemming of vergunning voor een verbouwing of bijvoorbeeld een asbestonderzoek.
Simpel gezegd zijn roerende zaken die zaken die niet aard en nagelvast zitten. Over sommige zaken bestaat hierover geen twijfel, bijvoorbeeld een keuken. Maar let op, want losse keukenapparatuur is dan weer wel een roerende zaak. Bij aankoop van een huis of appartement maak je afspraken over deze roerende zaken, zodat achteraf geen discussie kan ontstaan over wat er wel en niet bij de woning zou achterblijven. Wij gebruiken hiervoor een zogeheten ‘Lijst van Zaken’. Die laten wij voorafgaand aan de verkoop door de verkoper invullen en voegen we bij de verkoopdocumentatie. Zo weet je als koper voordat je overeenstemming hebt met de verkoper welke zaken er wel en niet achterblijven.  Soms staan er op deze lijst roerende zaken ‘ter overname’. Wanneer je die als koper niet overneemt of hierover expliciet afspraken maakt, zal de verkoper deze zaken meenemen.
De dag waarop je de sleutel ontvangt, noemen wij de datum van oplevering. Op die dag ga je samen met de verkoper naar de notaris waarbij het eigendom officieel wordt overgedragen. Dit is het moment waarop de koper de woning betaalt en de verkoper de koopsom ontvangt. Na deze officiële handeling zul je als koper de sleutels ontvangen. Er is geen vaste termijn waarbinnen je als koper de sleutels krijgt, dit is afhankelijk van wat je als koper en verkoper met elkaar hebt afgesproken. Deze datum wordt vastgelegd in de koopovereenkomst en is onderdeel van de onderhandeling.
Van der Meer team

We helpen je graag met al je woonwensen.

Verstuurd!

Je bericht is verstuurd en we nemen zo snel mogelijk contact met je op.