Noordwijk – Nieuwe Voorstraat 138

Nieuwe Voorstraat 138

2203 ZC

NOORDWIJK

€ 829.500,-
k.k.

IN AANBOUW – OPLEVERING OMSTREEKS NAJAAR 2026

Zeer royaal uitgebouwd HOEKherenhuis gelegen aan het extra brede gedeelte van de Nieuwe Voorstraat. Dankzij de hoekligging beschikt de woning over een extra brede kavel, een zeer ruime achtertuin op het zonnige zuidwesten én een breed plantsoen aan de voorzijde, wat zorgt voor veel privacy en een vrij gevoel. Aan de achterzijde bevindt zich een groot parkeerterrein met ruime openbare parkeergelegenheid.

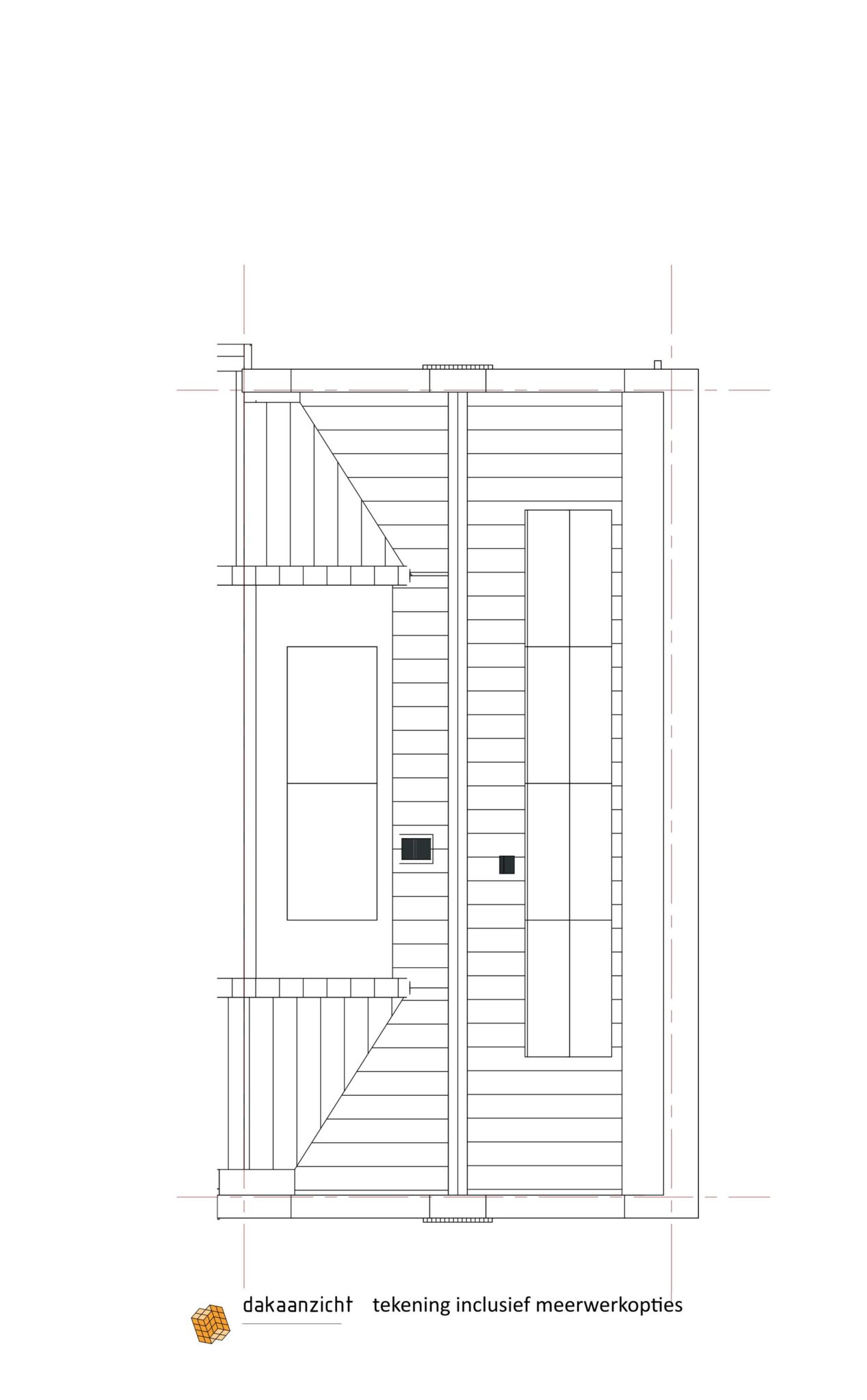
De woning wordt uiteraard volledig gasloos gebouwd en is voorzien van moderne en duurzame installaties. Voor een comfortabel binnenklimaat in zowel zomer als winter is gekozen voor vloerverwarming en vloerkoeling in combinatie met een individuele bodemwarmtepomp (eigendom). Op het dak worden 10 zonnepanelen (400 Wp) geplaatst die bijdragen aan een laag energieverbruik. In combinatie met hoogwaardige isolatie en triple glas wordt de woning gebouwd volgens de huidige BENG-normen (Bijna Energieneutraal Gebouw) en krijgt deze minimaal energielabel A+++.

De woning wordt uitgevoerd met diverse praktische meerwerkopties en wordt, met uitzondering van het toilet op de begane grond, casco en spuitwerkloos opgeleverd. Hierdoor kunt u de woning na oplevering volledig naar eigen smaak afwerken en inrichten.

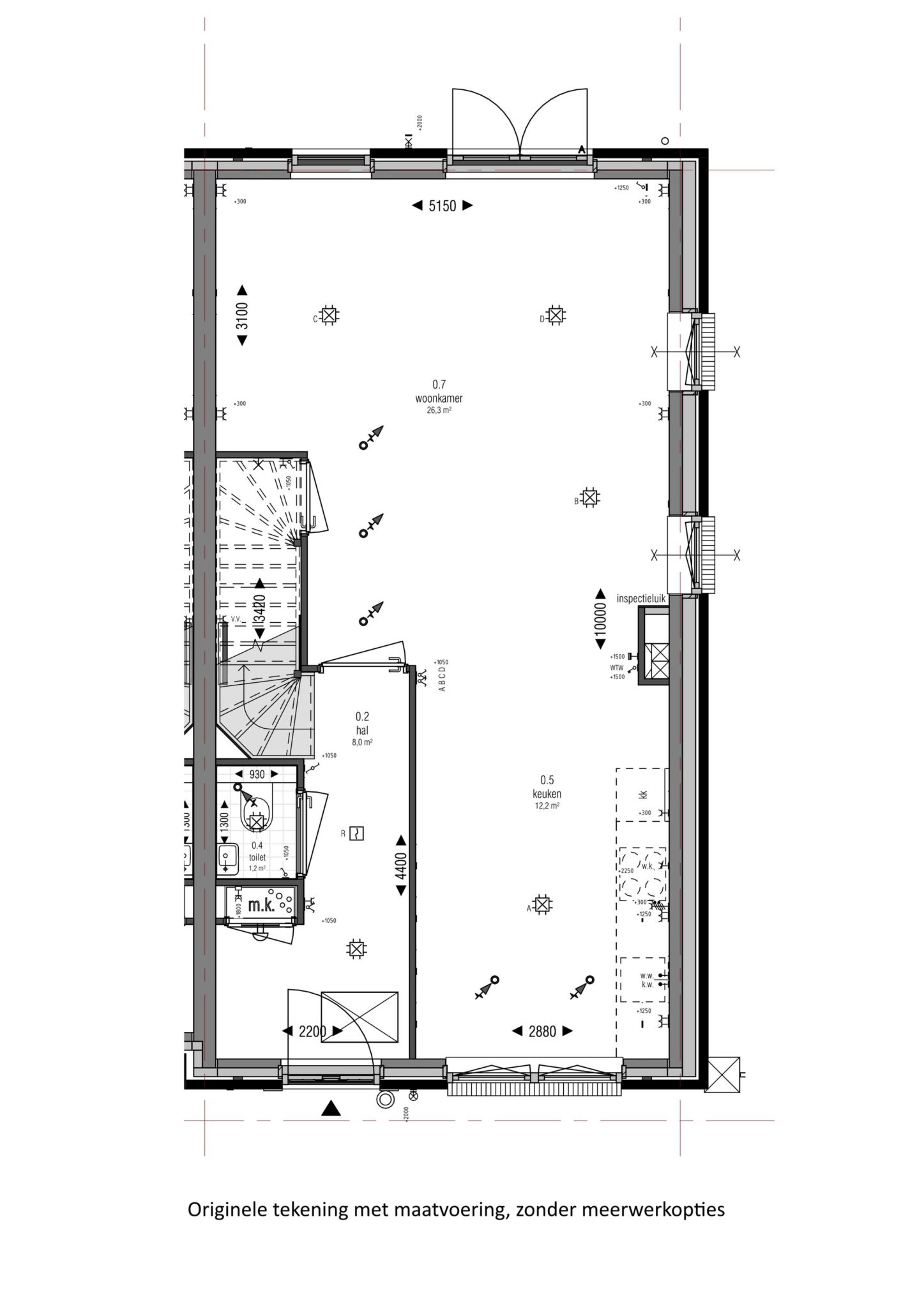
Indeling: Entree, hal met meterkast en een keurig tot het plafond betegeld vrijhangend toilet (zonder fonteintje, aansluitingen aanwezig). De zeer royale, uitgebouwde woonkamer heeft een indrukwekkende plafondhoogte van circa 3,07 meter en beschikt over twee glazen lichtkoepels, extra zijramen en openslaande deuren naar de zonnige achtertuin op het zuidwesten met buitenkraan en buitenstopcontact. Aan de voorzijde bevindt zich de open keuken, voorzien van twee draai-/kiepramen en aansluitingen voor een parallelopstelling (keuken niet inbegrepen).

De keukeninstallatie is voorbereid met diverse aansluitingen, waaronder:
o aparte groep voor vaatwasser en Quooker
o 3-fase perilex aansluiting (400V) voor een inductiekookplaat
o meerdere extra stopcontacten voor ovens en overige apparatuur.

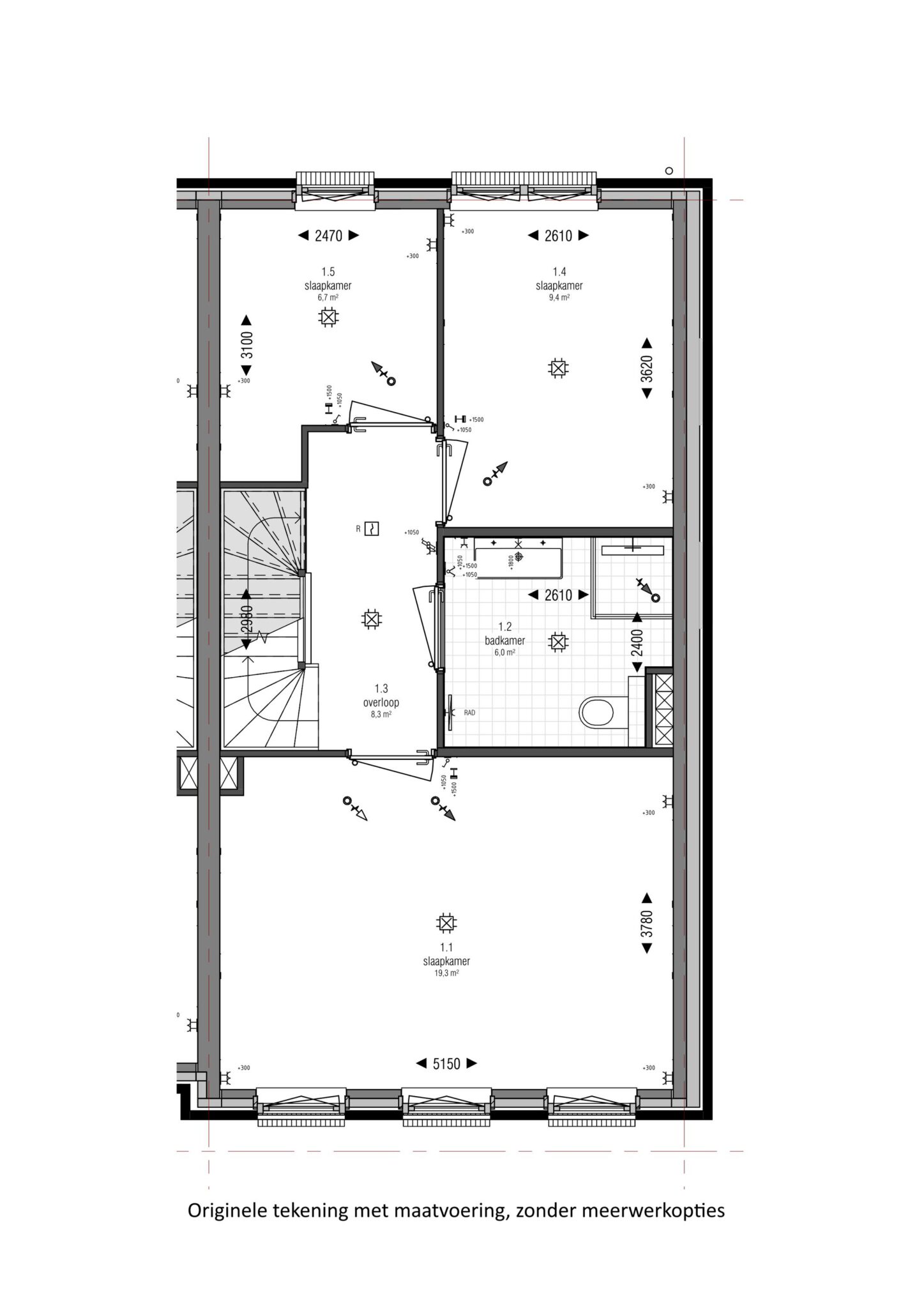
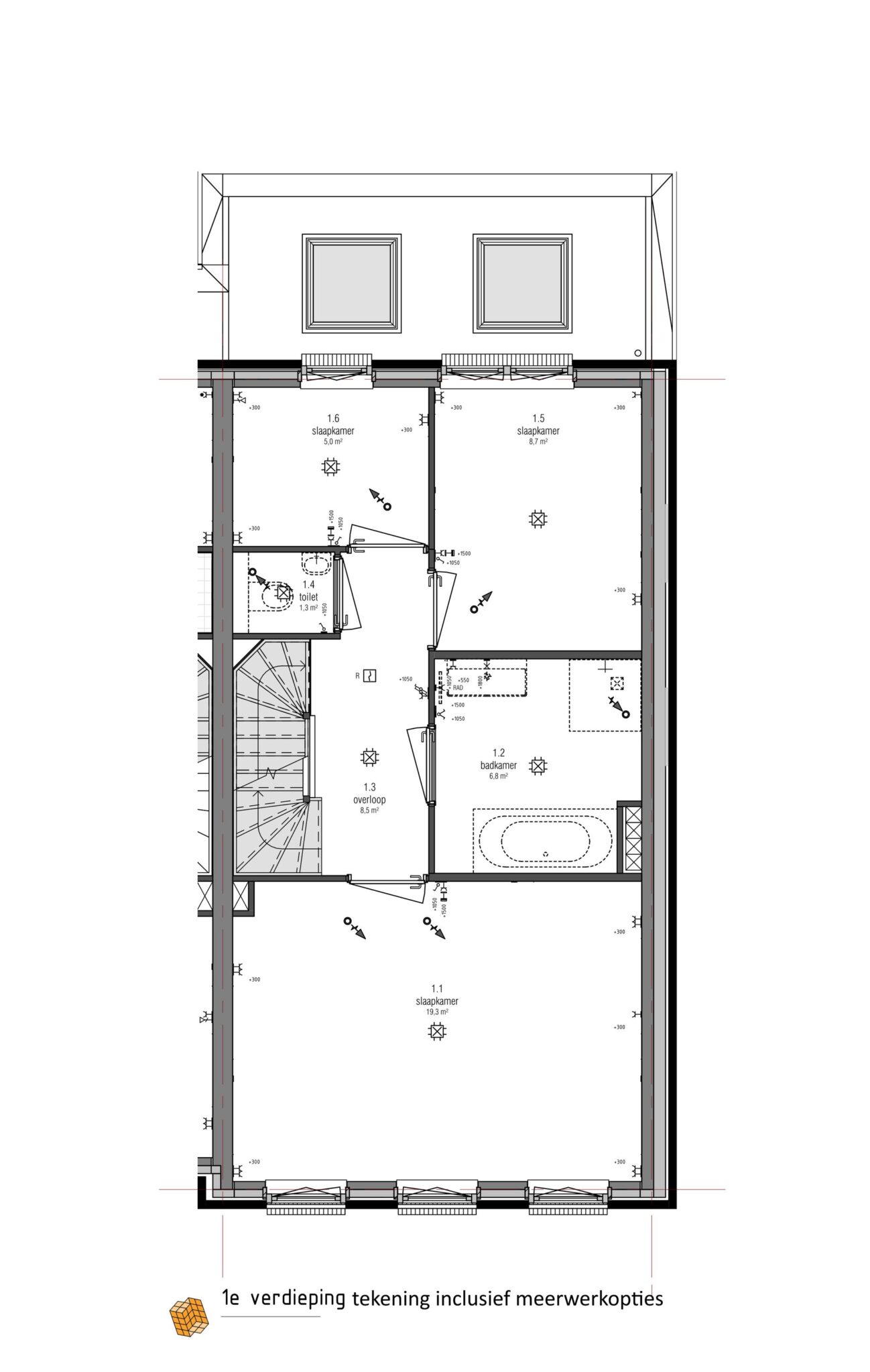
1e Verdieping: ruime overloop met separaat toilet (casco). Aan de voorzijde bevindt zich een zeer royale ouderslaapkamer. In het midden ligt de vergrote badkamer (casco) en aan de achterzijde bevinden zich twee slaapkamers.
Alle slaapkamers zijn voorzien van:
o draai-/kiepramen
o mechanische ventilatie (WTW)
o een eigen thermostaat voor individuele temperatuurregeling.

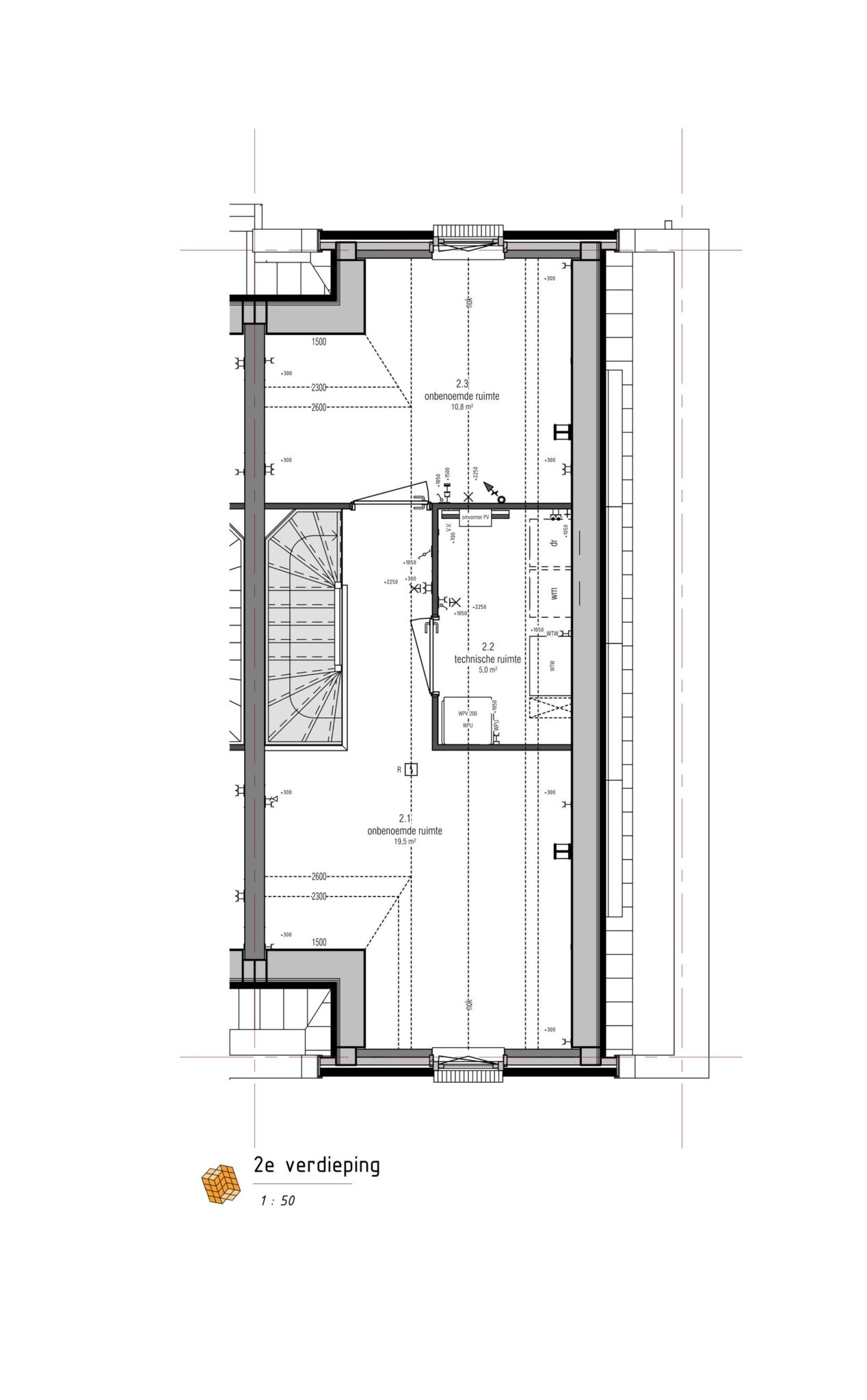
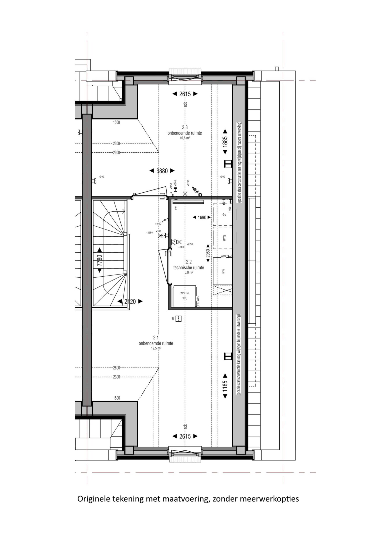
Vaste trap naar een zeer ruime zolderverdieping met voorzolder en draai-/kiepraam. Hier bevindt zich tevens de technische ruimte met:
o bodemwarmtepomp met extra grote boiler (200 liter)
o WTW-ventilatiesysteem
o omvormer voor de zonnepanelen
o aansluitingen voor wasmachine en droger.
Aan de achterzijde bevindt zich een ruime vierde slaapkamer met draai-/kiepraam, ventilatie, vloerverwarming en koeling.

Dankzij de hoekligging is het perceel extra breed en daardoor beschikt de woning over een zeer ruime achtertuin.
o Zijtuin van 1,60 meter breed v.v. gemetselde muur en fraaie poort aan de voorzijde
o Achtertuin met gaashekwerk met hedera en achterom
o Houten berging op betonnen vloer
o Voortuin uitgevoerd als Delftse stoep, passend bij de rest van de Nieuwe Voorstraat.

Bijzonderheden:
o Woningborg garantie is van toepassing
o De woning wordt kosten koper verkocht voor het deel grond en reeds gerealiseerde bouw
o De vermindering van de heffingsgrondslag voor de overdrachtsbelasting komt ten goede aan de verkoper
o Voor het deel wat na de notariële overdracht nog moet worden gebouwd en gefactureerd door de aannemer is inclusief 21% BTW
o De bouwplaats mag helaas niet betreden worden
o Bezichtigingen vinden plaats op kantoor, waar alle stukken, tekeningen en meer-/minderwerkopties worden toegelicht
o Wijzigingen in de bouw zijn niet meer mogelijk

Dit is de laatste kans op een splinternieuw herenhuis in deze woonwijk. Laat deze unieke mogelijkheid niet aan u voorbijgaan!

Interesse? Neem contact met ons op voor een persoonlijke afspraak op kantoor waarin wij alle details van deze woning graag met u bespreken.

NB: Aan de afgebeelde impressies kunnen geen rechten worden ontleend.

Lees de volledige omschrijving

Kenmerken

Adres Nieuwe Voorstraat 138
Postcode 2203 ZC
Plaats NOORDWIJK
Koopprijs € 829.500,-
Bouwjaar 2026
Woonoppervlakte 151 m2
Perceeloppervlakte 183 m2
Kamers 6
Slaapkamers 4
Energielabel

Plattegronden

JEL_4461
Kees SchaartRegister Makelaar en Register Taxateur

Is dit jouw droomwoning?

Neem contact op voor meer informatie of een bezichtiging.

Met 6 NVM-makelaars en 7 ondersteuners is er altijd iemand voor je beschikbaar, zodat we je persoonlijk verder kunnen helpen.

Veelgestelde vragen

Ook bij het kopen van een woonhuis of appartement is er een zekere consumentenbescherming. Dit betekent dat je als koper ook na het sluiten van de koopovereenkomst nog zonder opgave van redenen van de koop kan afzien. Dit is de wettelijke bedenktijd en geldt voor een periode van 3 werkdagen. Deze periode gaat in op het moment dat je als koper een kopie van de volledig getekende koopovereenkomst hebt ontvangen. De periode kan niet eindigen in het weekend en er mag maximaal 1 weekenddag meegeteld worden. Stel je ontvangt op donderdag een kopie van de volledig getekende koopovereenkomst. Dan eindigt je bedenktijd op maandag om 23.59 uur. Vrijdag is dag 1, weekend is dag 2 en maandag is dag 3. Er is niet bepaald hoe je de bedenktijd moet inroepen. Een simpel belletje zou dus al voldoende zijn. Wij adviseren je om in het geval je de bedenktijd wilt inroepen dit altijd schriftelijk te doen. Zo kan er nooit betwist worden of je het hebt ingeroepen en of je op tijd was.
Bij de onderhandeling kun je ontbindende voorwaarden meenemen. Een bekende ontbindende voorwaarde is de ontbindende voorwaarde voor het rondkrijgen van je hypotheek, al dan niet met Nationale Hypotheek Garantie. De overeengekomen ontbindende voorwaarde(n) worden vastgelegd in de koopovereenkomst. Wanneer je een ontbindende voorwaarde voor het verkrijgen van je hypotheek bent overeengekomen dan is daaraan ook een bedrag gekoppeld. Stel je hebt een hypotheek van € 300.000,- nodig om de woning te kunnen betalen, dan staat in de koopovereenkomst dat je de koop kunt ontbinden als er geen geldverstrekker is die je € 300.000,- wil financieren. Dit zal je echter wel goed gedocumenteerd moeten doen. Je moet kunnen aantonen dat je al het redelijk mogelijke hebt gedaan om de benodigde financiering te verkrijgen en je moet een afwijzing van de hypotheekaanvraag kunnen overleggen. Een ontbindende voorwaarde is altijd voor een bepaalde termijn. Houd deze termijn goed in de gaten, is de datum verstreken dan kun je geen beroep meer doen op de betreffende ontbindende voorwaarde. Op dat moment is de koop definitief. Andere bekende ontbindende voorwaarden zijn een bouwkundige keuring, het verkrijgen van een toestemming of vergunning voor een verbouwing of bijvoorbeeld een asbestonderzoek.
Simpel gezegd zijn roerende zaken die zaken die niet aard en nagelvast zitten. Over sommige zaken bestaat hierover geen twijfel, bijvoorbeeld een keuken. Maar let op, want losse keukenapparatuur is dan weer wel een roerende zaak. Bij aankoop van een huis of appartement maak je afspraken over deze roerende zaken, zodat achteraf geen discussie kan ontstaan over wat er wel en niet bij de woning zou achterblijven. Wij gebruiken hiervoor een zogeheten ‘Lijst van Zaken’. Die laten wij voorafgaand aan de verkoop door de verkoper invullen en voegen we bij de verkoopdocumentatie. Zo weet je als koper voordat je overeenstemming hebt met de verkoper welke zaken er wel en niet achterblijven.  Soms staan er op deze lijst roerende zaken ‘ter overname’. Wanneer je die als koper niet overneemt of hierover expliciet afspraken maakt, zal de verkoper deze zaken meenemen.
De dag waarop je de sleutel ontvangt, noemen wij de datum van oplevering. Op die dag ga je samen met de verkoper naar de notaris waarbij het eigendom officieel wordt overgedragen. Dit is het moment waarop de koper de woning betaalt en de verkoper de koopsom ontvangt. Na deze officiële handeling zul je als koper de sleutels ontvangen. Er is geen vaste termijn waarbinnen je als koper de sleutels krijgt, dit is afhankelijk van wat je als koper en verkoper met elkaar hebt afgesproken. Deze datum wordt vastgelegd in de koopovereenkomst en is onderdeel van de onderhandeling.
Van der Meer team

We helpen je graag met al je woonwensen.

Verstuurd!

Je bericht is verstuurd en we nemen zo snel mogelijk contact met je op.