Verkocht onder voorbehoud
Noordwijk – Leon Senfstraat 40

Leon Senfstraat 40

2202 SC

NOORDWIJK

€ 595.000,-
k.k.

Op unieke locatie, op steenworp afstand van het strand en de boulevard gelegen, goed onderhouden eengezinswoning met riant zomerhuis. Strand op loopafstand en duin en bos binnen handbereik. Deze charmante woning beschikt over een beschutte, zonnige tuin op het zuidoosten en heeft een gunstige ligging nabij winkelvoorzieningen, scholen en het gezellige centrum van Noordwijk aan Zee.

Indeling:
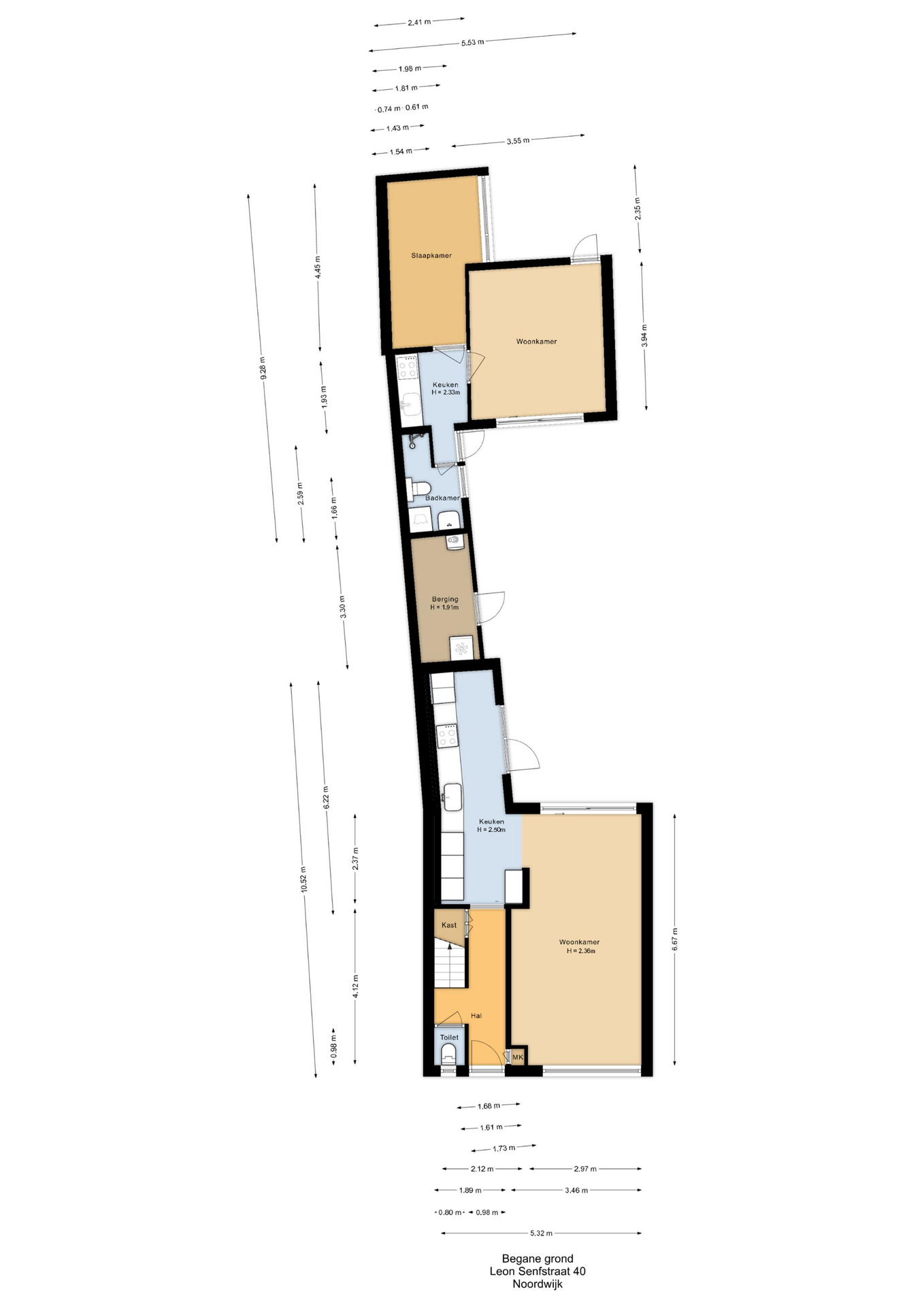
Entree, hal, meterkast, diepe trapkast en separate toiletruimte. Ruime open keuken in moderne kleurstelling voorzien van inbouwapparatuur te weten: 5-pits inductiekookplaat met afzuigkap, koel-vriescombinatie, 2 combi-ovens en een vaatwasser. In de keuken is tevens de wasmachine /droger aansluiting aanwezig. Lichte woonkamer met verlaagd plafond waarin verlichting is verwerkt. Vanuit de woonkamer toegang tot de zonnige achtertuin door middel van een schuifpui. De achtertuin is ook vanuit de keuken te bereikbaar.

1e verdieping:
Ruime overloop. 1e (ouder)slaapkamer voorzien van airco aan de achterzijde. 2e slaapkamer aan de achterzijde voorzien van vaste kasten. 3e slaapkamer aan de voorzijde. Moderne volledig betegelde badkamer voorzien van inloopdouche, wastafelmeubel en toilet.

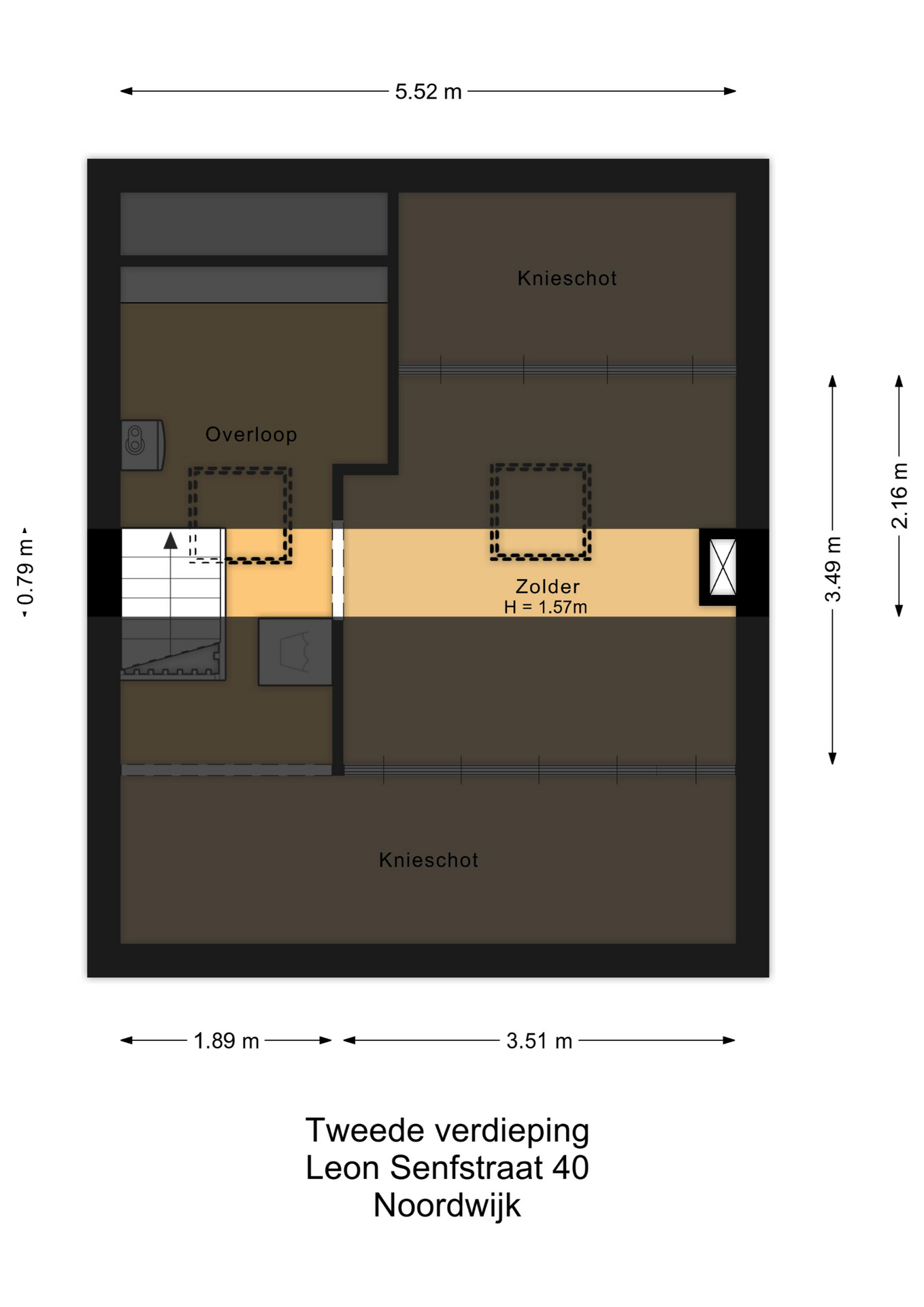
2e verdieping:
Overloop met opstelling c.v. combiketel. Ruime zolderkamer (beperkte stahoogte) met Velux dakraam en berging achter de knieschotten.

Zomerhuis:
Het zomerhuis (ca. 32 m²) is via achterom bereikbaar en heeft een eigen entree. Lichte woonkamer met schuifpui naar de achtertuin. Het zomerhuis heeft een eigen tuin. Vanuit de woonkamer toegang tot de keuken en vervolgens is de ruime slaapkamer bereikbaar. Verzorgde badkamer met douche, badkamermeubel en toilet.

Bijzonderheden:
• De woning is bijna geheel voorzien van kunststof kozijnen met isolatieglas;
• Vernieuwde keuken en badkamer;
• Het genoemde woonoppervlakte van circa 113 m² is inclusief het woonoppervlakte van het zomerhuis.
• Zomerhuis met eigen entree;
• De woning is op korte afstand gelegen van strand, duinen en het centrum.

Lees de volledige omschrijving

Kenmerken

Adres Leon Senfstraat 40
Postcode 2202 SC
Plaats NOORDWIJK
Koopprijs € 595.000,-
Bouwjaar 1957
Woonoppervlakte 113 m2
Perceeloppervlakte 163 m2
Kamers 5
Slaapkamers 3
Energielabel

Plattegronden

JEL_7979klv1
Geert-Jan MoermanRegister Makelaar en Register Taxateur

Is dit jouw droomwoning?

Neem contact op voor meer informatie of een bezichtiging.

Met 6 NVM-makelaars en 7 ondersteuners is er altijd iemand voor je beschikbaar, zodat we je persoonlijk verder kunnen helpen.

Veelgestelde vragen

Ook bij het kopen van een woonhuis of appartement is er een zekere consumentenbescherming. Dit betekent dat je als koper ook na het sluiten van de koopovereenkomst nog zonder opgave van redenen van de koop kan afzien. Dit is de wettelijke bedenktijd en geldt voor een periode van 3 werkdagen. Deze periode gaat in op het moment dat je als koper een kopie van de volledig getekende koopovereenkomst hebt ontvangen. De periode kan niet eindigen in het weekend en er mag maximaal 1 weekenddag meegeteld worden. Stel je ontvangt op donderdag een kopie van de volledig getekende koopovereenkomst. Dan eindigt je bedenktijd op maandag om 23.59 uur. Vrijdag is dag 1, weekend is dag 2 en maandag is dag 3. Er is niet bepaald hoe je de bedenktijd moet inroepen. Een simpel belletje zou dus al voldoende zijn. Wij adviseren je om in het geval je de bedenktijd wilt inroepen dit altijd schriftelijk te doen. Zo kan er nooit betwist worden of je het hebt ingeroepen en of je op tijd was.
Bij de onderhandeling kun je ontbindende voorwaarden meenemen. Een bekende ontbindende voorwaarde is de ontbindende voorwaarde voor het rondkrijgen van je hypotheek, al dan niet met Nationale Hypotheek Garantie. De overeengekomen ontbindende voorwaarde(n) worden vastgelegd in de koopovereenkomst. Wanneer je een ontbindende voorwaarde voor het verkrijgen van je hypotheek bent overeengekomen dan is daaraan ook een bedrag gekoppeld. Stel je hebt een hypotheek van € 300.000,- nodig om de woning te kunnen betalen, dan staat in de koopovereenkomst dat je de koop kunt ontbinden als er geen geldverstrekker is die je € 300.000,- wil financieren. Dit zal je echter wel goed gedocumenteerd moeten doen. Je moet kunnen aantonen dat je al het redelijk mogelijke hebt gedaan om de benodigde financiering te verkrijgen en je moet een afwijzing van de hypotheekaanvraag kunnen overleggen. Een ontbindende voorwaarde is altijd voor een bepaalde termijn. Houd deze termijn goed in de gaten, is de datum verstreken dan kun je geen beroep meer doen op de betreffende ontbindende voorwaarde. Op dat moment is de koop definitief. Andere bekende ontbindende voorwaarden zijn een bouwkundige keuring, het verkrijgen van een toestemming of vergunning voor een verbouwing of bijvoorbeeld een asbestonderzoek.
Simpel gezegd zijn roerende zaken die zaken die niet aard en nagelvast zitten. Over sommige zaken bestaat hierover geen twijfel, bijvoorbeeld een keuken. Maar let op, want losse keukenapparatuur is dan weer wel een roerende zaak. Bij aankoop van een huis of appartement maak je afspraken over deze roerende zaken, zodat achteraf geen discussie kan ontstaan over wat er wel en niet bij de woning zou achterblijven. Wij gebruiken hiervoor een zogeheten ‘Lijst van Zaken’. Die laten wij voorafgaand aan de verkoop door de verkoper invullen en voegen we bij de verkoopdocumentatie. Zo weet je als koper voordat je overeenstemming hebt met de verkoper welke zaken er wel en niet achterblijven.  Soms staan er op deze lijst roerende zaken ‘ter overname’. Wanneer je die als koper niet overneemt of hierover expliciet afspraken maakt, zal de verkoper deze zaken meenemen.
De dag waarop je de sleutel ontvangt, noemen wij de datum van oplevering. Op die dag ga je samen met de verkoper naar de notaris waarbij het eigendom officieel wordt overgedragen. Dit is het moment waarop de koper de woning betaalt en de verkoper de koopsom ontvangt. Na deze officiële handeling zul je als koper de sleutels ontvangen. Er is geen vaste termijn waarbinnen je als koper de sleutels krijgt, dit is afhankelijk van wat je als koper en verkoper met elkaar hebt afgesproken. Deze datum wordt vastgelegd in de koopovereenkomst en is onderdeel van de onderhandeling.
Van der Meer team

We helpen je graag met al je woonwensen.

Verstuurd!

Je bericht is verstuurd en we nemen zo snel mogelijk contact met je op.