Noordwijk – Kweeklust 51

Kweeklust 51

2203 ZB

NOORDWIJK

€ 1.165.000,-
k.k.

Kweeklust 51 Noordwijk (bouwnummer 17, nieuwbouwproject Buitenrijk, deelgebied 1)
IN AANBOUW, OPLEVERING OMSTREEKS 1E KWARTAAL 2026

Wil je begin 2026 al in deze zeer duurzame nieuwbouw halfvrijstaande villa wonen? Dan is dit je unieke kans! Royaal bemeten halfvrijstaande villa met aangebouwde garage, oprit voor 2 auto’s, uitgebouwde woonkeuken en een royale voor- zij- en achtertuin. Betreft een doorverkoop door een particuliere koper.

De woning wordt opgeleverd met de door verkoper gemaakte meerwerkkeuzes. Dit betekent onder andere een uitbouw aan de achterzijde van 2.40 meter, keukenaansluitingen inclusief voorbereiding kookeiland aan de achterkant, dicht uitgevoerde trappen, casco vergrote badkamer op de 1e verdieping, casco vergrote badkamer op de 2e verdieping, casco toilet op de begane grond- en 1e verdieping, buitenkraan voor- en achter, opgewaardeerd binnendeurbeslag, extra data aansluitingen, extra stopcontacten, mantelbuis ten behoeve van een laadvoorziening voor een elektrische auto, en vervallen van spuitwerk op de begane grond en 1e verdieping.

Alle details over de reeds gekozen opties, zowel meer- als minderwerk, laten wij graag aan u zien.

Natuurlijk wordt de woning gasloos gebouwd. Een behaaglijk binnenklimaat in zomer en winter én grip op de energiekosten. Bij deze woning gaan die twee hand in hand. In de woning in Buitenrijk is veel aandacht geschonken aan comfortabele en duurzame energieoplossingen. Er is gekozen voor vloerverwarming (en koeling) met een individuele bodemwarmtepomp die het huis in de winter behaaglijk warm en in de zomer heerlijk koel houdt. De voorbereiding voor optionele zonnepanelen op het dak van de woning kunnen er voor zorgen dat het energieverbruik verder beperkt wordt. Al deze maatregelen, in combinatie met de toegepaste hoogwaardige isolatiematerialen, zorgen er voor dat de woning conform de huidige regels BENG (bijna energieneutraal) gebouwd wordt. Een geruststellende gedachte met het oog op de toekomst. Voorlopig energielabel A+++!

Indeling:
Zij-entree, royale hal, toiletruimte en meterkast. Bijzonder aan de woning is de riante en lichte living aan de voorzijde. Aan de achterzijde de uitgebouwde woonkeuken met dubbele openslaande deuren naar de achtertuin. De aansluitpunten en sparing in de vloerverwarming zijn ingericht op een kookeiland en aanrecht met aansluitingen voor de diverse apparatuur. De woonkamer en keuken zijn totaal ruim 76 m².

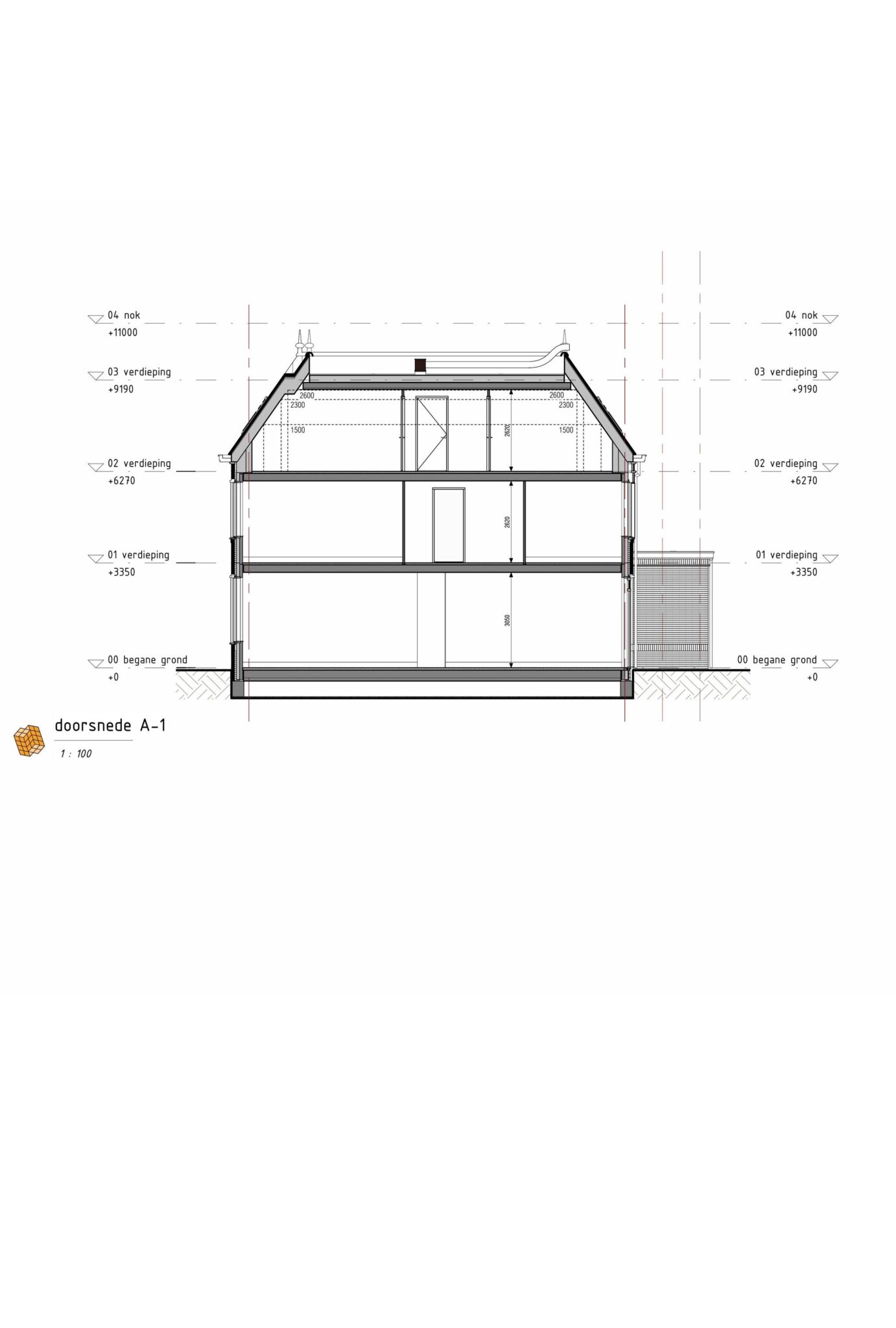
1e etage: ruime overloop met separaat casco toilet, casco vergrote badkamer met aansluitpunten voor ligbad, aparte douche en wastafel met dubbele kranen. Royale masterbedroom en nog twee flinke slaapkamers met draai-/kiepramen. Alle slaapkamers zijn voorzien van eigen thermostaat voor de bediening van warmte en koeling.

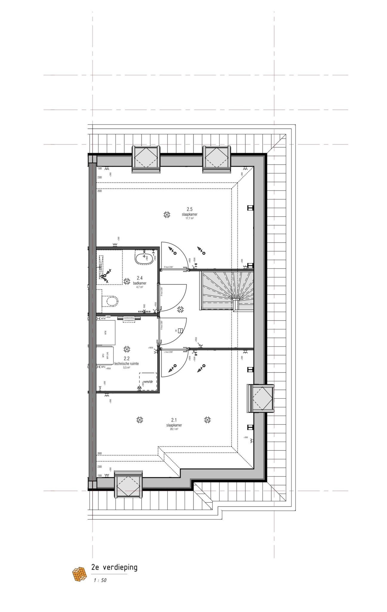
Vaste trap naar 2e etage: ruime overloop, vergrote casco badkamer met aansluitpunten voor douche, toilet en wastafel. Flinke slaapkamer aan de achterzijde en nog een flinke slaapkamer aan de voorzijde met Velux dakramen en toegang tot de afgesloten installatieruimte.

Bijzonderheden:
o Woningborg garantie is van toepassing;
o De koopsom geschiedt kosten koper;
o De vermindering van de heffingsgrondslag voor de overdrachtsbelasting komt ten goede aan de verkoper;
o Wijzigingen tijdens de bouw zijn niet meer mogelijk, de woning wordt afgebouwd conform bijgaande tekeningen;
o Het is verboden om de bouwplaats te betreden.

Vraagprijs € 1.165.000,- k.k.

Lees de volledige omschrijving

Kenmerken

Adres Kweeklust 51
Postcode 2203 ZB
Plaats NOORDWIJK
Koopprijs € 1.165.000,-
Bouwjaar 2025
Woonoppervlakte 218 m2
Perceeloppervlakte 299 m2
Kamers 6
Slaapkamers 5
Energielabel

Plattegronden

JEL_7690
Linda van der MeerRegister Makelaar en Register Taxateur

Is dit jouw droomwoning?

Neem contact op voor meer informatie of een bezichtiging.

Met 6 NVM-makelaars en 7 ondersteuners is er altijd iemand voor je beschikbaar, zodat we je persoonlijk verder kunnen helpen.

Veelgestelde vragen

Ook bij het kopen van een woonhuis of appartement is er een zekere consumentenbescherming. Dit betekent dat je als koper ook na het sluiten van de koopovereenkomst nog zonder opgave van redenen van de koop kan afzien. Dit is de wettelijke bedenktijd en geldt voor een periode van 3 werkdagen. Deze periode gaat in op het moment dat je als koper een kopie van de volledig getekende koopovereenkomst hebt ontvangen. De periode kan niet eindigen in het weekend en er mag maximaal 1 weekenddag meegeteld worden. Stel je ontvangt op donderdag een kopie van de volledig getekende koopovereenkomst. Dan eindigt je bedenktijd op maandag om 23.59 uur. Vrijdag is dag 1, weekend is dag 2 en maandag is dag 3. Er is niet bepaald hoe je de bedenktijd moet inroepen. Een simpel belletje zou dus al voldoende zijn. Wij adviseren je om in het geval je de bedenktijd wilt inroepen dit altijd schriftelijk te doen. Zo kan er nooit betwist worden of je het hebt ingeroepen en of je op tijd was.
Bij de onderhandeling kun je ontbindende voorwaarden meenemen. Een bekende ontbindende voorwaarde is de ontbindende voorwaarde voor het rondkrijgen van je hypotheek, al dan niet met Nationale Hypotheek Garantie. De overeengekomen ontbindende voorwaarde(n) worden vastgelegd in de koopovereenkomst. Wanneer je een ontbindende voorwaarde voor het verkrijgen van je hypotheek bent overeengekomen dan is daaraan ook een bedrag gekoppeld. Stel je hebt een hypotheek van € 300.000,- nodig om de woning te kunnen betalen, dan staat in de koopovereenkomst dat je de koop kunt ontbinden als er geen geldverstrekker is die je € 300.000,- wil financieren. Dit zal je echter wel goed gedocumenteerd moeten doen. Je moet kunnen aantonen dat je al het redelijk mogelijke hebt gedaan om de benodigde financiering te verkrijgen en je moet een afwijzing van de hypotheekaanvraag kunnen overleggen. Een ontbindende voorwaarde is altijd voor een bepaalde termijn. Houd deze termijn goed in de gaten, is de datum verstreken dan kun je geen beroep meer doen op de betreffende ontbindende voorwaarde. Op dat moment is de koop definitief. Andere bekende ontbindende voorwaarden zijn een bouwkundige keuring, het verkrijgen van een toestemming of vergunning voor een verbouwing of bijvoorbeeld een asbestonderzoek.
Simpel gezegd zijn roerende zaken die zaken die niet aard en nagelvast zitten. Over sommige zaken bestaat hierover geen twijfel, bijvoorbeeld een keuken. Maar let op, want losse keukenapparatuur is dan weer wel een roerende zaak. Bij aankoop van een huis of appartement maak je afspraken over deze roerende zaken, zodat achteraf geen discussie kan ontstaan over wat er wel en niet bij de woning zou achterblijven. Wij gebruiken hiervoor een zogeheten ‘Lijst van Zaken’. Die laten wij voorafgaand aan de verkoop door de verkoper invullen en voegen we bij de verkoopdocumentatie. Zo weet je als koper voordat je overeenstemming hebt met de verkoper welke zaken er wel en niet achterblijven.  Soms staan er op deze lijst roerende zaken ‘ter overname’. Wanneer je die als koper niet overneemt of hierover expliciet afspraken maakt, zal de verkoper deze zaken meenemen.
De dag waarop je de sleutel ontvangt, noemen wij de datum van oplevering. Op die dag ga je samen met de verkoper naar de notaris waarbij het eigendom officieel wordt overgedragen. Dit is het moment waarop de koper de woning betaalt en de verkoper de koopsom ontvangt. Na deze officiële handeling zul je als koper de sleutels ontvangen. Er is geen vaste termijn waarbinnen je als koper de sleutels krijgt, dit is afhankelijk van wat je als koper en verkoper met elkaar hebt afgesproken. Deze datum wordt vastgelegd in de koopovereenkomst en is onderdeel van de onderhandeling.
Van der Meer team

We helpen je graag met al je woonwensen.

Verstuurd!

Je bericht is verstuurd en we nemen zo snel mogelijk contact met je op.