Noordwijk – Bronckhorststraat 17

Bronckhorststraat 17

2201 KT

NOORDWIJK

€ 895.000,-
k.k.

In één van de oudste straten van Noordwijk, dicht bij de historische dorpskern ligt deze authentieke half vrijstaande bollenschuur, verbouwd tot comfortabel dubbel woonhuis. Deze sfeervolle woning heeft een totale woonoppervlakte van 216m² en beschikt over 4 slaapkamers en 2 badkamers. Verder heeft het een grote multifunctionele ruimte (circa 35m²).
Onttrokken aan de straat; rustige en beschut gelegen tuin met ruime berging.
Deze karakteristieke woning is gunstig gelegen op loopafstand van scholen, de Kerkstraat met haar verscheidenheid aan winkels en de weekmarkt op het Kloosterplein.

Deze unieke woning met bijgebouw biedt een scala aan mogelijkheden, bijvoorbeeld: wonen met kantoor aan huis, mogelijkheden tot verhuur, een gastenverblijf voor familie en vrienden, gebruik als hobbyruimte of werkplaats, of een combinatie van deze opties (al dan niet vergunning plichtig conform vigerend bestemmingsplan).
Na de plattegronden is een tweetal artist impressions bijgevoegd, die meerdere opties voor de woning weergeven.

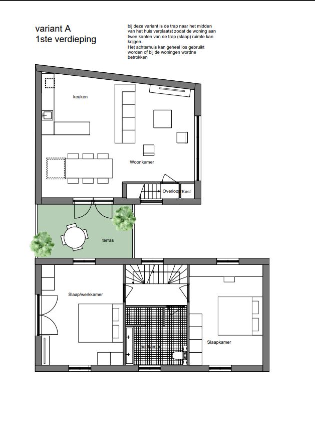
Indeling:
Entree, hal met meterkast, grote toiletruimte, deur naar de tuin en deur naar de grote multifunctionele ruimte met opstelling c.v. combiketel (2024), spoelbak en aansluiting voor wasapparatuur.

1e verdieping:
Ruime en lichte woonkamer met sfeervolle houtkachel en openslaande deuren naar Frans balkon op het zuidwesten. Halfopen keuken voorzien van diverse inbouwapparatuur.

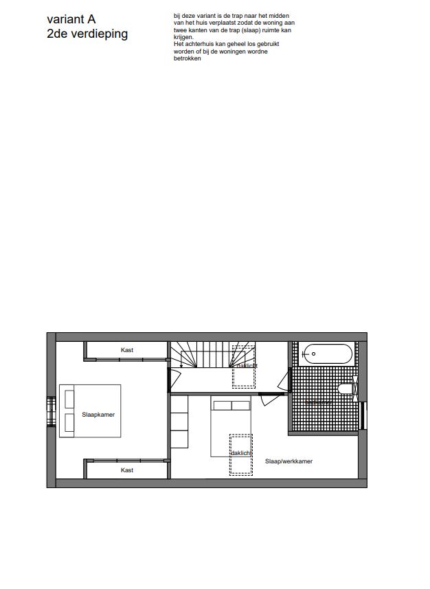
2e verdieping:
Grote slaapetage met hoge nok en bijzonder uitzicht aan de voor- en achterzijde. Badkamer en suite. Mogelijkheid tot het creëren van een extra (slaap)kamer.

Gastenverblijf:
Binnendoor te bereiken 2e woning, met 2 ruime slaapkamers, wasruimte en toiletruimte en toegang tot de tuin. Inbouwkast, badkamer, keuken (inductieplaat, afzuigkap, vaatwasser, magnetron, koelkast + vriezer) en woon-/slaap-/werkgedeelte op 1e verdieping. Toegankelijk via eigen buitendeur. Eigen c.v. combiketel (2015) en stoppenkast.

Bijzonderheden:
• Riante, karakteristieke woning(en);
• Totaal woonoppervlakte 216m2;
• Aan doodlopende straat;
• Fraaie lichtinval rondom;
• Energielabel C;
• Sfeervolle binnenplaats;
• Gunstige ligging met winkels op loopafstand en op korte fietsafstand van het strand.

Lees de volledige omschrijving

Kenmerken

Adres Bronckhorststraat 17
Postcode 2201 KT
Plaats NOORDWIJK
Koopprijs € 895.000,-
Bouwjaar 1800
Woonoppervlakte 216 m2
Perceeloppervlakte 150 m2
Kamers 6
Slaapkamers 4
Energielabel

Plattegronden

JEL_7979klv1
Geert-Jan MoermanRegister Makelaar en Register Taxateur

Is dit jouw droomwoning?

Neem contact op voor meer informatie of een bezichtiging.

Met 6 NVM-makelaars en 7 ondersteuners is er altijd iemand voor je beschikbaar, zodat we je persoonlijk verder kunnen helpen.

Veelgestelde vragen

Ook bij het kopen van een woonhuis of appartement is er een zekere consumentenbescherming. Dit betekent dat je als koper ook na het sluiten van de koopovereenkomst nog zonder opgave van redenen van de koop kan afzien. Dit is de wettelijke bedenktijd en geldt voor een periode van 3 werkdagen. Deze periode gaat in op het moment dat je als koper een kopie van de volledig getekende koopovereenkomst hebt ontvangen. De periode kan niet eindigen in het weekend en er mag maximaal 1 weekenddag meegeteld worden. Stel je ontvangt op donderdag een kopie van de volledig getekende koopovereenkomst. Dan eindigt je bedenktijd op maandag om 23.59 uur. Vrijdag is dag 1, weekend is dag 2 en maandag is dag 3. Er is niet bepaald hoe je de bedenktijd moet inroepen. Een simpel belletje zou dus al voldoende zijn. Wij adviseren je om in het geval je de bedenktijd wilt inroepen dit altijd schriftelijk te doen. Zo kan er nooit betwist worden of je het hebt ingeroepen en of je op tijd was.
Bij de onderhandeling kun je ontbindende voorwaarden meenemen. Een bekende ontbindende voorwaarde is de ontbindende voorwaarde voor het rondkrijgen van je hypotheek, al dan niet met Nationale Hypotheek Garantie. De overeengekomen ontbindende voorwaarde(n) worden vastgelegd in de koopovereenkomst. Wanneer je een ontbindende voorwaarde voor het verkrijgen van je hypotheek bent overeengekomen dan is daaraan ook een bedrag gekoppeld. Stel je hebt een hypotheek van € 300.000,- nodig om de woning te kunnen betalen, dan staat in de koopovereenkomst dat je de koop kunt ontbinden als er geen geldverstrekker is die je € 300.000,- wil financieren. Dit zal je echter wel goed gedocumenteerd moeten doen. Je moet kunnen aantonen dat je al het redelijk mogelijke hebt gedaan om de benodigde financiering te verkrijgen en je moet een afwijzing van de hypotheekaanvraag kunnen overleggen. Een ontbindende voorwaarde is altijd voor een bepaalde termijn. Houd deze termijn goed in de gaten, is de datum verstreken dan kun je geen beroep meer doen op de betreffende ontbindende voorwaarde. Op dat moment is de koop definitief. Andere bekende ontbindende voorwaarden zijn een bouwkundige keuring, het verkrijgen van een toestemming of vergunning voor een verbouwing of bijvoorbeeld een asbestonderzoek.
Simpel gezegd zijn roerende zaken die zaken die niet aard en nagelvast zitten. Over sommige zaken bestaat hierover geen twijfel, bijvoorbeeld een keuken. Maar let op, want losse keukenapparatuur is dan weer wel een roerende zaak. Bij aankoop van een huis of appartement maak je afspraken over deze roerende zaken, zodat achteraf geen discussie kan ontstaan over wat er wel en niet bij de woning zou achterblijven. Wij gebruiken hiervoor een zogeheten ‘Lijst van Zaken’. Die laten wij voorafgaand aan de verkoop door de verkoper invullen en voegen we bij de verkoopdocumentatie. Zo weet je als koper voordat je overeenstemming hebt met de verkoper welke zaken er wel en niet achterblijven.  Soms staan er op deze lijst roerende zaken ‘ter overname’. Wanneer je die als koper niet overneemt of hierover expliciet afspraken maakt, zal de verkoper deze zaken meenemen.
De dag waarop je de sleutel ontvangt, noemen wij de datum van oplevering. Op die dag ga je samen met de verkoper naar de notaris waarbij het eigendom officieel wordt overgedragen. Dit is het moment waarop de koper de woning betaalt en de verkoper de koopsom ontvangt. Na deze officiële handeling zul je als koper de sleutels ontvangen. Er is geen vaste termijn waarbinnen je als koper de sleutels krijgt, dit is afhankelijk van wat je als koper en verkoper met elkaar hebt afgesproken. Deze datum wordt vastgelegd in de koopovereenkomst en is onderdeel van de onderhandeling.
Van der Meer team

We helpen je graag met al je woonwensen.

Verstuurd!

Je bericht is verstuurd en we nemen zo snel mogelijk contact met je op.