Leiden – Legewerfsteeg 23

Legewerfsteeg 23

2312 GW

LEIDEN

€ 415.000,-
k.k.

Rustig wonen op top locatie in het centrum van Leiden.

Grenzend aan de Haarlemmerstraat ligt dit 3-kamerappartement op de bovenste (derde) verdieping.
Een fijne plek voor wie graag midden in de stad woont, maar thuis ook rust zoekt.

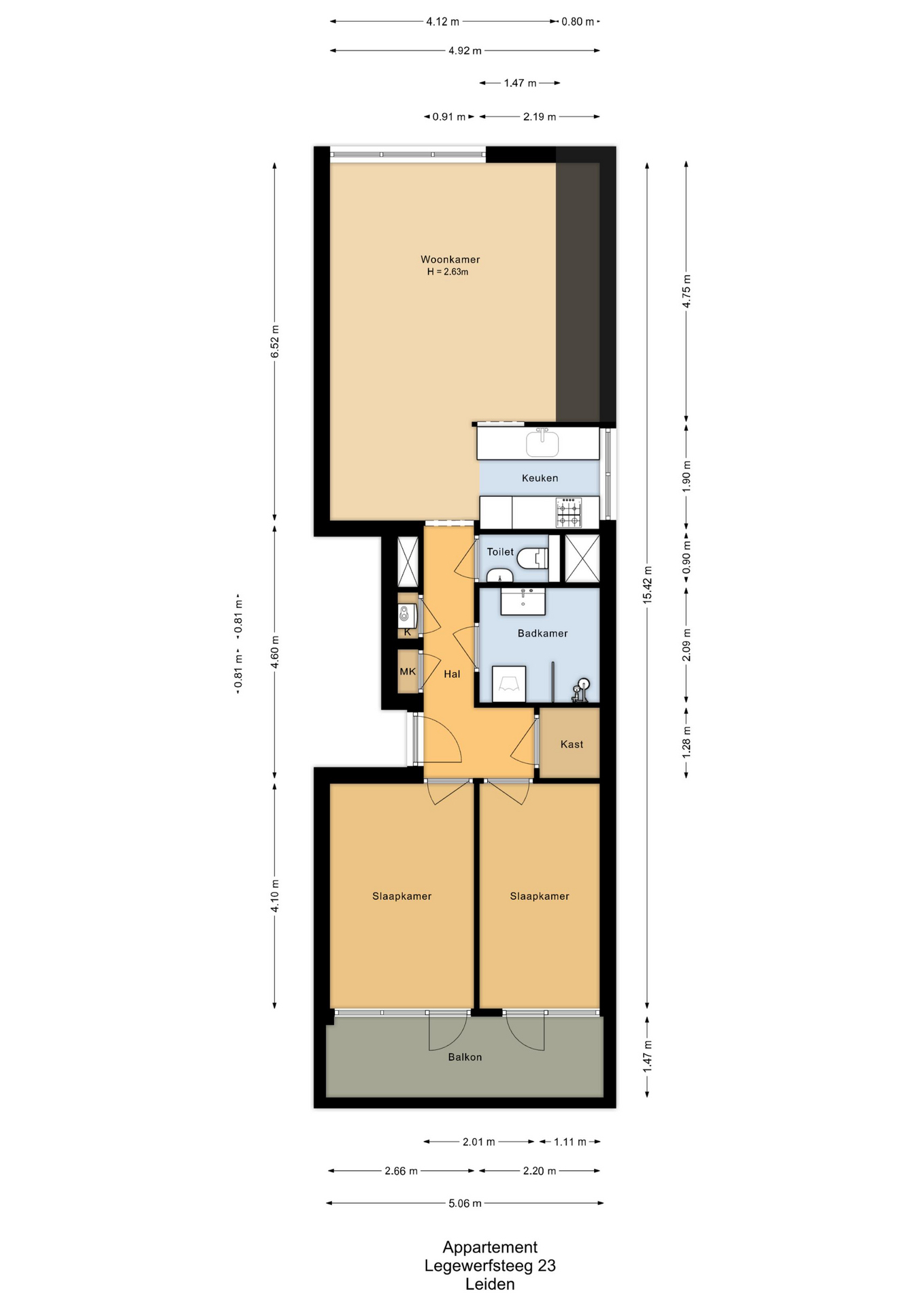
Indeling
Via het trappenhuis bereik je de voordeur op de derde verdieping. De hal geeft toegang tot alle vertrekken.
Er zijn twee slaapkamers, beide met een deur naar het balkon. Vanaf hier kijk je uit over de karakteristieke daken van de Leidse binnenstad – een uitzicht dat direct sfeer geeft.

De hal biedt verder een ruime inloop bergkast, een apart toilet en de badkamer (grotendeels gerenoveerd in 2024) met wastafelmeubel, inloopdouche, designradiator en aansluiting voor de wasmachine. Daarnaast is er een kast met de cv-installatie en een extra bergruimte.

De woonkamer is licht en voelt ruim aan.
De inloopkeuken sluit daar mooi op aan en is netjes en praktisch ingericht, voorzien van een gaskookplaat, koel-/vriescombinatie en combi-oven/magnetron.
Vanuit zowel het raam in de woonkamer als het keukenraam kijk je opnieuw uit over de stad.

Pluspunten
• Rustig wonen, in het hart van Leiden;
• Twee slaapkamers, beide met toegang tot het balkon;
• Balkon op het westen met uitzicht over de daken van de binnenstad;
• Grotendeels vernieuwde badkamer uit 2024;
• Bovenste verdieping, dus geen bovenburen;
• Een ruime berging (met een vide) direct bij de ingang van het gebouw,
goed te gebruiken als stalling voor (elektrische) fietsen en/of brommobielen;
• Goed onderhouden appartement van 67 m².

Een verzorgd appartement op een unieke plek: midden in de stad, met alle voorzieningen op loopafstand, maar toch met verrassend veel rust en privacy.

Lees de volledige omschrijving

Kenmerken

Adres Legewerfsteeg 23
Postcode 2312 GW
Plaats LEIDEN
Koopprijs € 415.000,-
Bouwjaar 1981
Woonoppervlakte 67 m2
Perceeloppervlakte 67 m2
Kamers 3
Slaapkamers 2
Energielabel

Plattegronden

No data was found

Is dit jouw droomwoning?

Neem contact op voor meer informatie of een bezichtiging.

Met 6 NVM-makelaars en 7 ondersteuners is er altijd iemand voor je beschikbaar, zodat we je persoonlijk verder kunnen helpen.

Veelgestelde vragen

Ook bij het kopen van een woonhuis of appartement is er een zekere consumentenbescherming. Dit betekent dat je als koper ook na het sluiten van de koopovereenkomst nog zonder opgave van redenen van de koop kan afzien. Dit is de wettelijke bedenktijd en geldt voor een periode van 3 werkdagen. Deze periode gaat in op het moment dat je als koper een kopie van de volledig getekende koopovereenkomst hebt ontvangen. De periode kan niet eindigen in het weekend en er mag maximaal 1 weekenddag meegeteld worden. Stel je ontvangt op donderdag een kopie van de volledig getekende koopovereenkomst. Dan eindigt je bedenktijd op maandag om 23.59 uur. Vrijdag is dag 1, weekend is dag 2 en maandag is dag 3. Er is niet bepaald hoe je de bedenktijd moet inroepen. Een simpel belletje zou dus al voldoende zijn. Wij adviseren je om in het geval je de bedenktijd wilt inroepen dit altijd schriftelijk te doen. Zo kan er nooit betwist worden of je het hebt ingeroepen en of je op tijd was.
Bij de onderhandeling kun je ontbindende voorwaarden meenemen. Een bekende ontbindende voorwaarde is de ontbindende voorwaarde voor het rondkrijgen van je hypotheek, al dan niet met Nationale Hypotheek Garantie. De overeengekomen ontbindende voorwaarde(n) worden vastgelegd in de koopovereenkomst. Wanneer je een ontbindende voorwaarde voor het verkrijgen van je hypotheek bent overeengekomen dan is daaraan ook een bedrag gekoppeld. Stel je hebt een hypotheek van € 300.000,- nodig om de woning te kunnen betalen, dan staat in de koopovereenkomst dat je de koop kunt ontbinden als er geen geldverstrekker is die je € 300.000,- wil financieren. Dit zal je echter wel goed gedocumenteerd moeten doen. Je moet kunnen aantonen dat je al het redelijk mogelijke hebt gedaan om de benodigde financiering te verkrijgen en je moet een afwijzing van de hypotheekaanvraag kunnen overleggen. Een ontbindende voorwaarde is altijd voor een bepaalde termijn. Houd deze termijn goed in de gaten, is de datum verstreken dan kun je geen beroep meer doen op de betreffende ontbindende voorwaarde. Op dat moment is de koop definitief. Andere bekende ontbindende voorwaarden zijn een bouwkundige keuring, het verkrijgen van een toestemming of vergunning voor een verbouwing of bijvoorbeeld een asbestonderzoek.
Simpel gezegd zijn roerende zaken die zaken die niet aard en nagelvast zitten. Over sommige zaken bestaat hierover geen twijfel, bijvoorbeeld een keuken. Maar let op, want losse keukenapparatuur is dan weer wel een roerende zaak. Bij aankoop van een huis of appartement maak je afspraken over deze roerende zaken, zodat achteraf geen discussie kan ontstaan over wat er wel en niet bij de woning zou achterblijven. Wij gebruiken hiervoor een zogeheten ‘Lijst van Zaken’. Die laten wij voorafgaand aan de verkoop door de verkoper invullen en voegen we bij de verkoopdocumentatie. Zo weet je als koper voordat je overeenstemming hebt met de verkoper welke zaken er wel en niet achterblijven.  Soms staan er op deze lijst roerende zaken ‘ter overname’. Wanneer je die als koper niet overneemt of hierover expliciet afspraken maakt, zal de verkoper deze zaken meenemen.
De dag waarop je de sleutel ontvangt, noemen wij de datum van oplevering. Op die dag ga je samen met de verkoper naar de notaris waarbij het eigendom officieel wordt overgedragen. Dit is het moment waarop de koper de woning betaalt en de verkoper de koopsom ontvangt. Na deze officiële handeling zul je als koper de sleutels ontvangen. Er is geen vaste termijn waarbinnen je als koper de sleutels krijgt, dit is afhankelijk van wat je als koper en verkoper met elkaar hebt afgesproken. Deze datum wordt vastgelegd in de koopovereenkomst en is onderdeel van de onderhandeling.
Van der Meer team

We helpen je graag met al je woonwensen.

Verstuurd!

Je bericht is verstuurd en we nemen zo snel mogelijk contact met je op.