Katwijk – Noordwijkerweg 23

Noordwijkerweg 23

2223 AD

KATWIJK

€ 619.000,-
k.k.

Uitstekend onderhouden en luxe afgewerkte tussenwoning, gelegen in een van de meest karakteristieke straten van Katwijk aan den Rijn. De woning is aan de achterzijde uitgebouwd, v.v. openslaande deuren naar de zonnige achtertuin. Schitterende tweede etage met een goede 4e slaapkamer v.v. meerdere inbouwkasten, een dakkapel en een airco. Deze woning is tot in detail afgewerkt met behoud van de sfeervolle originele details! Gewoon om verliefd op te worden!!

Kindvriendelijke woonomgeving in een karaktervolle straat op loopafstand van scholen, winkels en De Roskam. Gunstige ligging t.o.v. uitvalswegen en op fietsafstand van het strand, centrum van Leiden, NS-station Leiden en het LUMC.

De woning is voor 99% v.v. dubbel glas. Sfeervolle open haard is voor de wintermaanden aanwezig. Airco is op de 2e etage aanwezig. In 2022 zijn er 11 zonnepanelen geïnstalleerd. Al met al goede energiebesparende voorzieningen. Energielabel C.

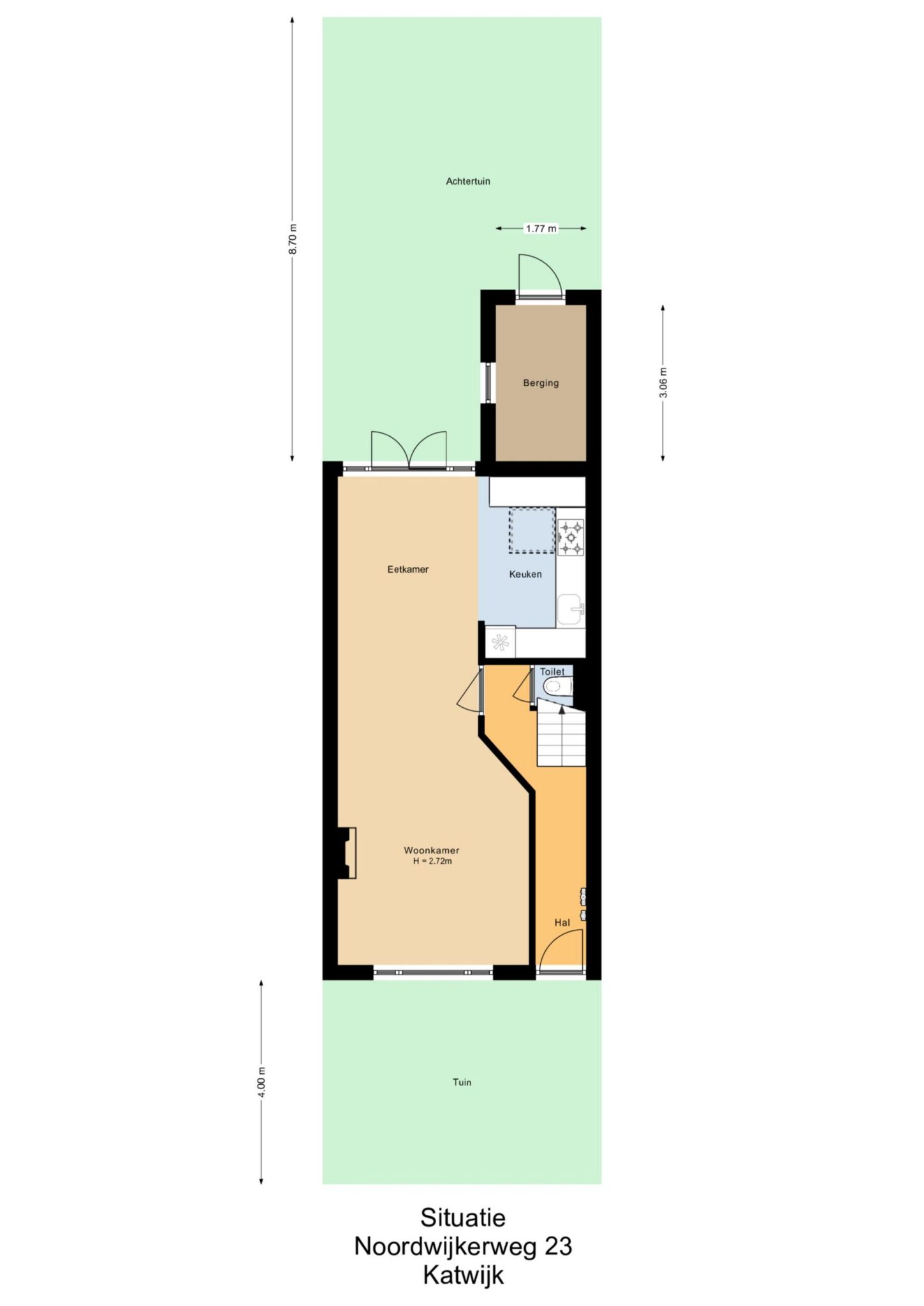
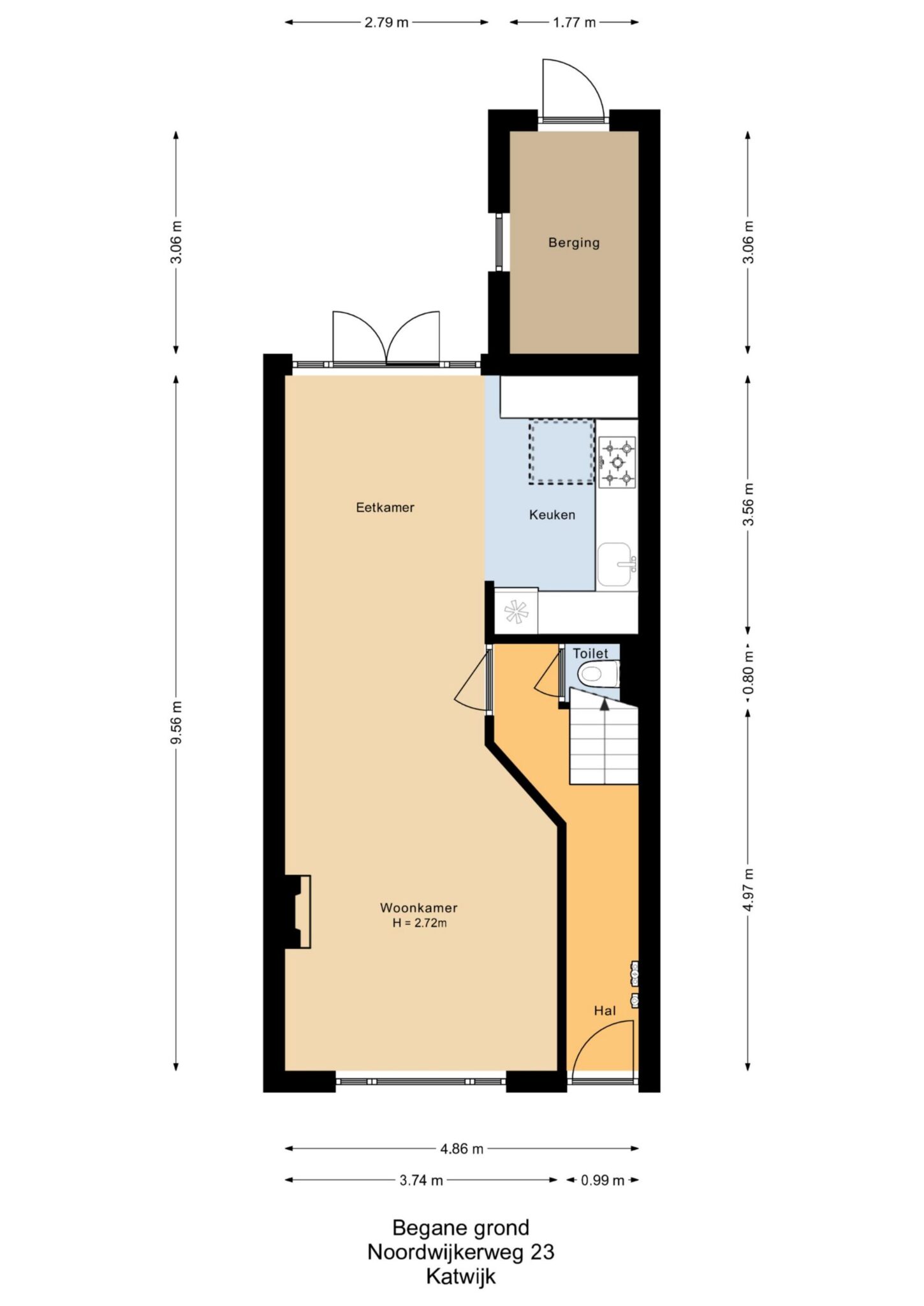
Indeling: Entree, gang met granitovloer, nieuwe schoenenkast en modern vrij hangend toilet. Ruime doorzon-woonkamer met laminaatvloer, fraai gestuukt plafond met joodse plint, schouw met allesbrander en openslaande deuren naar de geheel betegelde, uiterst zonnige achtertuin op het west-/zuidwesten met schuur, 2 tuinkasten en achterom. De moderne open keuken bevindt zich aan de achterzijde en is v.v. granieten aanrechtblad, brede lades, 5-pits gas-op-glas kookplaat, afzuigkap, oven, vaatwasser (2025), koelkast, 3-laden vriezer en kokend water kraan (2021).

1e Etage: overloop, ruime slaapkamer aan de achterzijde met fraaie paneeldeur, vaste kast met sfeervolle louvredeuren en screen. Tweede ruime slaapkamer aan de voorzijde, eveneens met vaste kast en louvredeuren. Derde slaapkamer aan de voorzijde met moderne kastenwand door “Meijvogel”. Supergave, trendy badkamer “Bouwton” met industriële inloopdouche, 2e vrij hangend toilet, designradiator en fraai wastafelmeubel met Barnwood lades, inbouwkranen, grote ronde spiegel en sfeerverlichting. Het neusje van de zalm!!

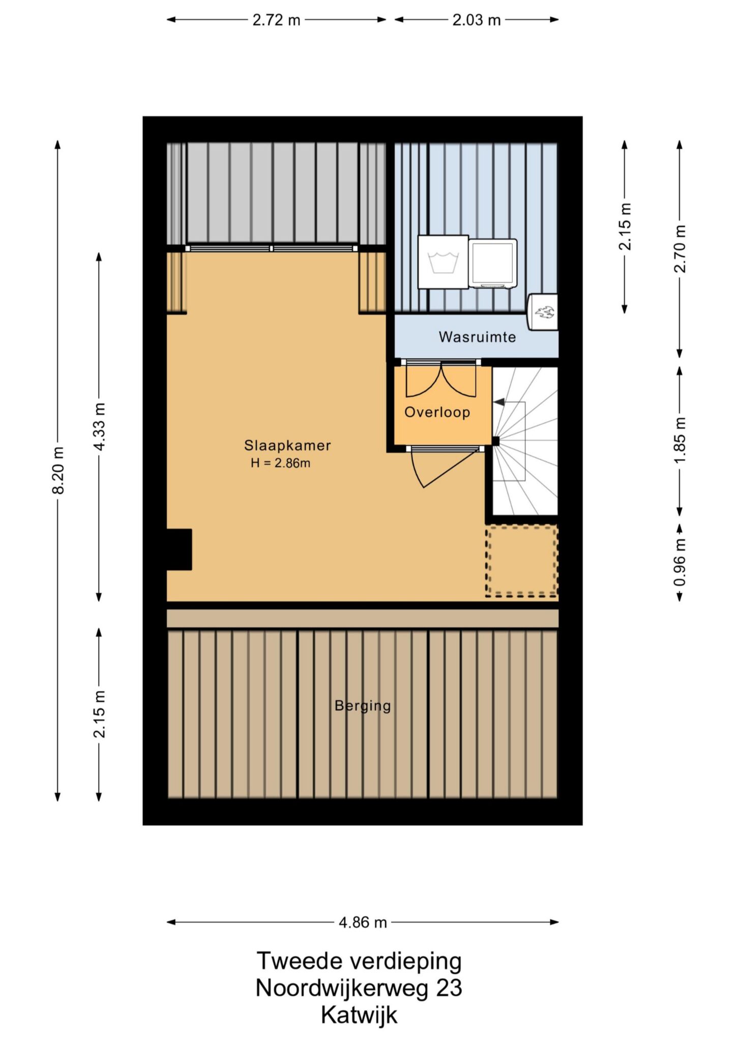
2e Etage: overloop, separate wasruimte met plaats voor de C.V. – ketel. Ruime ouderslaapkamer met diverse knieschotten, nieuw Velux dakraam aan de voorzijde en flinke dakkapel aan de achterzijde met elektrisch bedienbaar rolluik.

Bijzonderheden:
• Veel originele details zijn bewaard gebleven zoals de granitovloer in de hal, glas-in-lood, de binnendeurkozijnen met fraaie neuten en paneeldeuren en het fraai gestuukte plafond met Joodse plint in de woonkamer;
• Nieuwe meterkast (2015) met 8 groepen en aardlekschakelaars, nieuwe C.V.-ketel (Remeha Tzerra HR 2020);
• Nieuwe, moderne “Bouwton” badkamer uit 2020 geheel volgens de laatste trends en modern vrij hangend toilet op de begane grond (2020);
• Luxe “Bruijnzeel” keuken uit 2013 met natuurstenen aanrechtblad en diverse inbouwapparatuur;
• Nieuwe lichtkoepel in de keuken en openslaande deuren naar de zonnige achtertuin;
• Aangebouwde, ruime fietsenberging met nieuwe dakbedekking (2017);
• De woning is voor 99% v.v. dubbel glas, airco en 11 zonnepanelen.

Kortom, een huis dat met zorg is onderhouden, hier kunt u werkelijk zo in!! Interesse? Neem vrijblijvend contact op voor een bezichtiging ter plaatse.

Lees de volledige omschrijving

Kenmerken

Adres Noordwijkerweg 23
Postcode 2223 AD
Plaats KATWIJK
Koopprijs € 619.000,-
Bouwjaar 1937
Woonoppervlakte 107 m2
Perceeloppervlakte 129 m2
Kamers 5
Slaapkamers 4
Energielabel

Plattegronden

JEL_7666klv
Marc van BeekRegister Makelaar en Register Taxateur

Is dit jouw droomwoning?

Neem contact op voor meer informatie of een bezichtiging.

Met 6 NVM-makelaars en 7 ondersteuners is er altijd iemand voor je beschikbaar, zodat we je persoonlijk verder kunnen helpen.

Veelgestelde vragen

Ook bij het kopen van een woonhuis of appartement is er een zekere consumentenbescherming. Dit betekent dat je als koper ook na het sluiten van de koopovereenkomst nog zonder opgave van redenen van de koop kan afzien. Dit is de wettelijke bedenktijd en geldt voor een periode van 3 werkdagen. Deze periode gaat in op het moment dat je als koper een kopie van de volledig getekende koopovereenkomst hebt ontvangen. De periode kan niet eindigen in het weekend en er mag maximaal 1 weekenddag meegeteld worden. Stel je ontvangt op donderdag een kopie van de volledig getekende koopovereenkomst. Dan eindigt je bedenktijd op maandag om 23.59 uur. Vrijdag is dag 1, weekend is dag 2 en maandag is dag 3. Er is niet bepaald hoe je de bedenktijd moet inroepen. Een simpel belletje zou dus al voldoende zijn. Wij adviseren je om in het geval je de bedenktijd wilt inroepen dit altijd schriftelijk te doen. Zo kan er nooit betwist worden of je het hebt ingeroepen en of je op tijd was.
Bij de onderhandeling kun je ontbindende voorwaarden meenemen. Een bekende ontbindende voorwaarde is de ontbindende voorwaarde voor het rondkrijgen van je hypotheek, al dan niet met Nationale Hypotheek Garantie. De overeengekomen ontbindende voorwaarde(n) worden vastgelegd in de koopovereenkomst. Wanneer je een ontbindende voorwaarde voor het verkrijgen van je hypotheek bent overeengekomen dan is daaraan ook een bedrag gekoppeld. Stel je hebt een hypotheek van € 300.000,- nodig om de woning te kunnen betalen, dan staat in de koopovereenkomst dat je de koop kunt ontbinden als er geen geldverstrekker is die je € 300.000,- wil financieren. Dit zal je echter wel goed gedocumenteerd moeten doen. Je moet kunnen aantonen dat je al het redelijk mogelijke hebt gedaan om de benodigde financiering te verkrijgen en je moet een afwijzing van de hypotheekaanvraag kunnen overleggen. Een ontbindende voorwaarde is altijd voor een bepaalde termijn. Houd deze termijn goed in de gaten, is de datum verstreken dan kun je geen beroep meer doen op de betreffende ontbindende voorwaarde. Op dat moment is de koop definitief. Andere bekende ontbindende voorwaarden zijn een bouwkundige keuring, het verkrijgen van een toestemming of vergunning voor een verbouwing of bijvoorbeeld een asbestonderzoek.
Simpel gezegd zijn roerende zaken die zaken die niet aard en nagelvast zitten. Over sommige zaken bestaat hierover geen twijfel, bijvoorbeeld een keuken. Maar let op, want losse keukenapparatuur is dan weer wel een roerende zaak. Bij aankoop van een huis of appartement maak je afspraken over deze roerende zaken, zodat achteraf geen discussie kan ontstaan over wat er wel en niet bij de woning zou achterblijven. Wij gebruiken hiervoor een zogeheten ‘Lijst van Zaken’. Die laten wij voorafgaand aan de verkoop door de verkoper invullen en voegen we bij de verkoopdocumentatie. Zo weet je als koper voordat je overeenstemming hebt met de verkoper welke zaken er wel en niet achterblijven.  Soms staan er op deze lijst roerende zaken ‘ter overname’. Wanneer je die als koper niet overneemt of hierover expliciet afspraken maakt, zal de verkoper deze zaken meenemen.
De dag waarop je de sleutel ontvangt, noemen wij de datum van oplevering. Op die dag ga je samen met de verkoper naar de notaris waarbij het eigendom officieel wordt overgedragen. Dit is het moment waarop de koper de woning betaalt en de verkoper de koopsom ontvangt. Na deze officiële handeling zul je als koper de sleutels ontvangen. Er is geen vaste termijn waarbinnen je als koper de sleutels krijgt, dit is afhankelijk van wat je als koper en verkoper met elkaar hebt afgesproken. Deze datum wordt vastgelegd in de koopovereenkomst en is onderdeel van de onderhandeling.
Van der Meer team

We helpen je graag met al je woonwensen.

Verstuurd!

Je bericht is verstuurd en we nemen zo snel mogelijk contact met je op.