Katwijk – Jacob Catsstraat 13

Jacob Catsstraat 13

2221 JA

KATWIJK

€ 649.500,-
k.k.

Zeer ruime eengezinswoning met aangebouwde garage, direct aan het water!

Dit royale en keurig verzorgde woonhuis (maar liefst 6 meter breed!) biedt alles wat een gezin zoekt: een ruime woonkamer, vier echt grote slaapkamers en een ideale ligging direct aan een prachtige vijverpartij en het groen. De woning ligt in een zeer kindvriendelijke woonwijk, op steenworp afstand van twee basisscholen, winkelcentrum Hoornespassage en op korte fietsafstand van sportvelden én het strand!

Bijzonderheden:
o Royale woonkamer met gashaard, strak gestuukte wanden/plafond en openslaande deuren (2011);
o Luxe open keuken met natuurstenen blad en hoogwaardige apparatuur, waaronder Quooker, combi-oven en inductiekookplaat met wokbrander;
o Bijzonder fraai aangelegde, zonnige achtertuin met hagelnieuw vlonderterras aan het water, midden in het groen en volop privacy;
o Aangebouwde garage voorzien van extra wasmachineaansluiting en elektrische sectionaaldeur;
o Fraai aangelegde voortuin met keramische tegels en vernieuwde riolering;
o Uitgebreide meterkast met 3-fase krachtstroom;
o Voormalige balkon is dichtgebouwd (2011), nu extra grote slaapkamers;
o Airco-installatie (Mitsubishi, 2025) op zolder, geschikt voor koelen én verwarmen;
o Dakbedekking en shingles vernieuwd in 2008, alle Velux-dakramen vervangen in 2024;
o Oplevering: circa februari 2026.

Indeling:
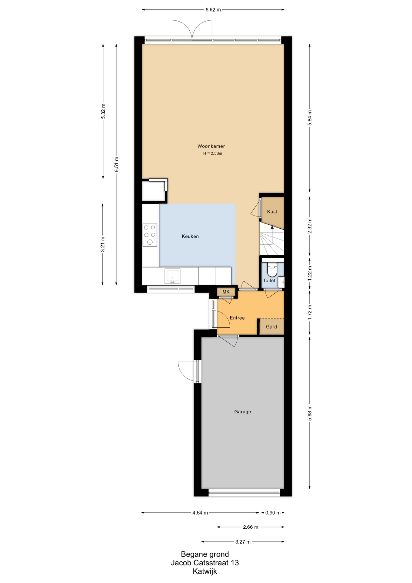
Begane grond:
Entree met hal, modern vrijhangend toilet met fonteintje. Riante garage aan de voorzijde, binnendoor bereikbaar. De ruime, tuingerichte woonkamer is afgewerkt met een laminaatvloer, glad gestuukte wanden en plafond (met Amsterdamse plint) en openslaande deuren naar de achtertuin. De begane grond is in 2011 geheel opgeknapt, er is tevens een compleet nieuw kozijn geplaatst in de achtergevel met openslaande deuren naar de achtertuin. Aan de voorzijde bevindt zich de moderne open keuken met gezellige doorkijk over de straat. De keuken is uitgerust met natuurstenen werkblad, Quooker, inductiekookplaat met wokbrander, combi-oven, afzuigschouw, vaatwasser en koelkast met vriesvak.

Achtertuin:
Een groene oase met meerdere terrassen, waaronder een terras met natuurstenen tegels (hardsteen) ter plaatse van de achtergevel en een vlonderterras aan het water. De ligging aan het groen en de vijverpartij biedt veel rust en privacy. De beschoeiing is circa 18 jaar geleden vernieuwd en het perceel loopt tot ongeveer halverwege het water. Dankzij de gunstige ligging kun je hier de hele dag van de zon genieten en heb je het hele jaar door een ultiem vakantiegevoel!

Eerste verdieping:
Ruime overloop met dakkapel en bergruimte. Twee bijzonder royale slaapkamers voorzien van strak gestuukte wanden en plafond. Het voormalige balkon is in 2011 bij de slaapkamers getrokken en buiten afgewerkt met onderhoudsvriendelijk Keralith. Ruime badkamer met dakkapel, ligbad, douche, wastafelmeubel en vrijhangend toilet.

Tweede verdieping:
Overloop met Velux-dakraam en airco-installatie. Vaste kast met c.v.-ketel (Nefit HR, bouwjaar 2017), mechanische ventilatie en aansluitingen voor de wasapparatuur. Twee ruime slaapkamers met Velux-dakraam, afgewerkt met glad gestuukte wanden en plafond, en beide voorzien van dubbele vaste kast en wastafelmeubel.

Kortom: luxe, ruimte en privacy op een toplocatie aan het water!

Bel ons direct voor een bezichtiging – dit soort woningen komt zelden beschikbaar!

Lees de volledige omschrijving

Kenmerken

Adres Jacob Catsstraat 13
Postcode 2221 JA
Plaats KATWIJK
Koopprijs € 649.500,-
Bouwjaar 1976
Woonoppervlakte 141 m2
Perceeloppervlakte 201 m2
Kamers 5
Slaapkamers 4
Energielabel

Plattegronden

JEL_7858klv
Kees SchaartRegister Makelaar en Register Taxateur

Is dit jouw droomwoning?

Neem contact op voor meer informatie of een bezichtiging.

Met 6 NVM-makelaars en 7 ondersteuners is er altijd iemand voor je beschikbaar, zodat we je persoonlijk verder kunnen helpen.

Veelgestelde vragen

Ook bij het kopen van een woonhuis of appartement is er een zekere consumentenbescherming. Dit betekent dat je als koper ook na het sluiten van de koopovereenkomst nog zonder opgave van redenen van de koop kan afzien. Dit is de wettelijke bedenktijd en geldt voor een periode van 3 werkdagen. Deze periode gaat in op het moment dat je als koper een kopie van de volledig getekende koopovereenkomst hebt ontvangen. De periode kan niet eindigen in het weekend en er mag maximaal 1 weekenddag meegeteld worden. Stel je ontvangt op donderdag een kopie van de volledig getekende koopovereenkomst. Dan eindigt je bedenktijd op maandag om 23.59 uur. Vrijdag is dag 1, weekend is dag 2 en maandag is dag 3. Er is niet bepaald hoe je de bedenktijd moet inroepen. Een simpel belletje zou dus al voldoende zijn. Wij adviseren je om in het geval je de bedenktijd wilt inroepen dit altijd schriftelijk te doen. Zo kan er nooit betwist worden of je het hebt ingeroepen en of je op tijd was.
Bij de onderhandeling kun je ontbindende voorwaarden meenemen. Een bekende ontbindende voorwaarde is de ontbindende voorwaarde voor het rondkrijgen van je hypotheek, al dan niet met Nationale Hypotheek Garantie. De overeengekomen ontbindende voorwaarde(n) worden vastgelegd in de koopovereenkomst. Wanneer je een ontbindende voorwaarde voor het verkrijgen van je hypotheek bent overeengekomen dan is daaraan ook een bedrag gekoppeld. Stel je hebt een hypotheek van € 300.000,- nodig om de woning te kunnen betalen, dan staat in de koopovereenkomst dat je de koop kunt ontbinden als er geen geldverstrekker is die je € 300.000,- wil financieren. Dit zal je echter wel goed gedocumenteerd moeten doen. Je moet kunnen aantonen dat je al het redelijk mogelijke hebt gedaan om de benodigde financiering te verkrijgen en je moet een afwijzing van de hypotheekaanvraag kunnen overleggen. Een ontbindende voorwaarde is altijd voor een bepaalde termijn. Houd deze termijn goed in de gaten, is de datum verstreken dan kun je geen beroep meer doen op de betreffende ontbindende voorwaarde. Op dat moment is de koop definitief. Andere bekende ontbindende voorwaarden zijn een bouwkundige keuring, het verkrijgen van een toestemming of vergunning voor een verbouwing of bijvoorbeeld een asbestonderzoek.
Simpel gezegd zijn roerende zaken die zaken die niet aard en nagelvast zitten. Over sommige zaken bestaat hierover geen twijfel, bijvoorbeeld een keuken. Maar let op, want losse keukenapparatuur is dan weer wel een roerende zaak. Bij aankoop van een huis of appartement maak je afspraken over deze roerende zaken, zodat achteraf geen discussie kan ontstaan over wat er wel en niet bij de woning zou achterblijven. Wij gebruiken hiervoor een zogeheten ‘Lijst van Zaken’. Die laten wij voorafgaand aan de verkoop door de verkoper invullen en voegen we bij de verkoopdocumentatie. Zo weet je als koper voordat je overeenstemming hebt met de verkoper welke zaken er wel en niet achterblijven.  Soms staan er op deze lijst roerende zaken ‘ter overname’. Wanneer je die als koper niet overneemt of hierover expliciet afspraken maakt, zal de verkoper deze zaken meenemen.
De dag waarop je de sleutel ontvangt, noemen wij de datum van oplevering. Op die dag ga je samen met de verkoper naar de notaris waarbij het eigendom officieel wordt overgedragen. Dit is het moment waarop de koper de woning betaalt en de verkoper de koopsom ontvangt. Na deze officiële handeling zul je als koper de sleutels ontvangen. Er is geen vaste termijn waarbinnen je als koper de sleutels krijgt, dit is afhankelijk van wat je als koper en verkoper met elkaar hebt afgesproken. Deze datum wordt vastgelegd in de koopovereenkomst en is onderdeel van de onderhandeling.
Van der Meer team

We helpen je graag met al je woonwensen.

Verstuurd!

Je bericht is verstuurd en we nemen zo snel mogelijk contact met je op.