Noordwijk – Schiewei 16

Schiewei 16

2203 ZG

NOORDWIJK

€ 839.500,-
k.k.

Praktisch nieuwe, uitgebouwde hoekwoning met extra brede, zonnige achtertuin!

Ben je op zoek naar een instapklare woning waar je zó in kunt? Deze moderne hoekwoning (bouwjaar 2019) combineert comfort, ruimte en energiezuinigheid met een fijne ligging in de jonge wijk Offem-Zuid. Dankzij de uitgebouwde woonkamer, 6 volwaardige kamers, het grote dakkapel én de extra brede achtertuin met vrije ligging, geniet je hier de hele dag van de zon, ruimte én privacy.

Pluspunten op een rij:
o Vrije ligging aan voor- en achterzijde met volop licht, lucht, ruimte en privacy
o Groot kunststof dakkapel aan de voorzijde. Voor- en achterzijde voorzien van elektrische screens en een elektrisch zonnescherm (ook via app bedienbaar)
o Energielabel A met uitstekende isolatie en 5 zonnepanelen: laag energieverbruik en lage lasten
o Instapklaar – verhuizen, dozen uitpakken en genieten!
o Oplevering omstreeks april/mei 2026, afhankelijk van de oplevering van de nieuwbouwwoning van de verkopers

Ligging
De woning ligt aan een brede straat met een waterpartij voor de deur en speeltuintjes in de directe omgeving. Offem-Zuid is een jonge en populaire woonwijk met een kindvriendelijke en prettige woonomgeving. Scholen, sportverenigingen en winkels liggen dichtbij, en het centrum van Noordwijk is snel te bereiken. Binnen tien minuten fietsen sta je bovendien op het strand of in de duinen. Via de N206 en A44 ben je ook snel in steden als Leiden, Haarlem, Den Haag en Amsterdam.

Indeling
Begane grond: entree met hal, meterkast en een modern vrijhangend toilet met fonteintje. Royale, uitgebouwde woonkamer met visgraat plavuizenvloer en vloerverwarming, ruime trapkast en openslaande deuren naar de zonnige achtertuin. De keuken aan de voorzijde is modern en in parallelopstelling uitgevoerd, voorzien van inductiekookplaat, afzuigkap, kokendwaterkraan, vaatwasser en dubbele combi-oven.

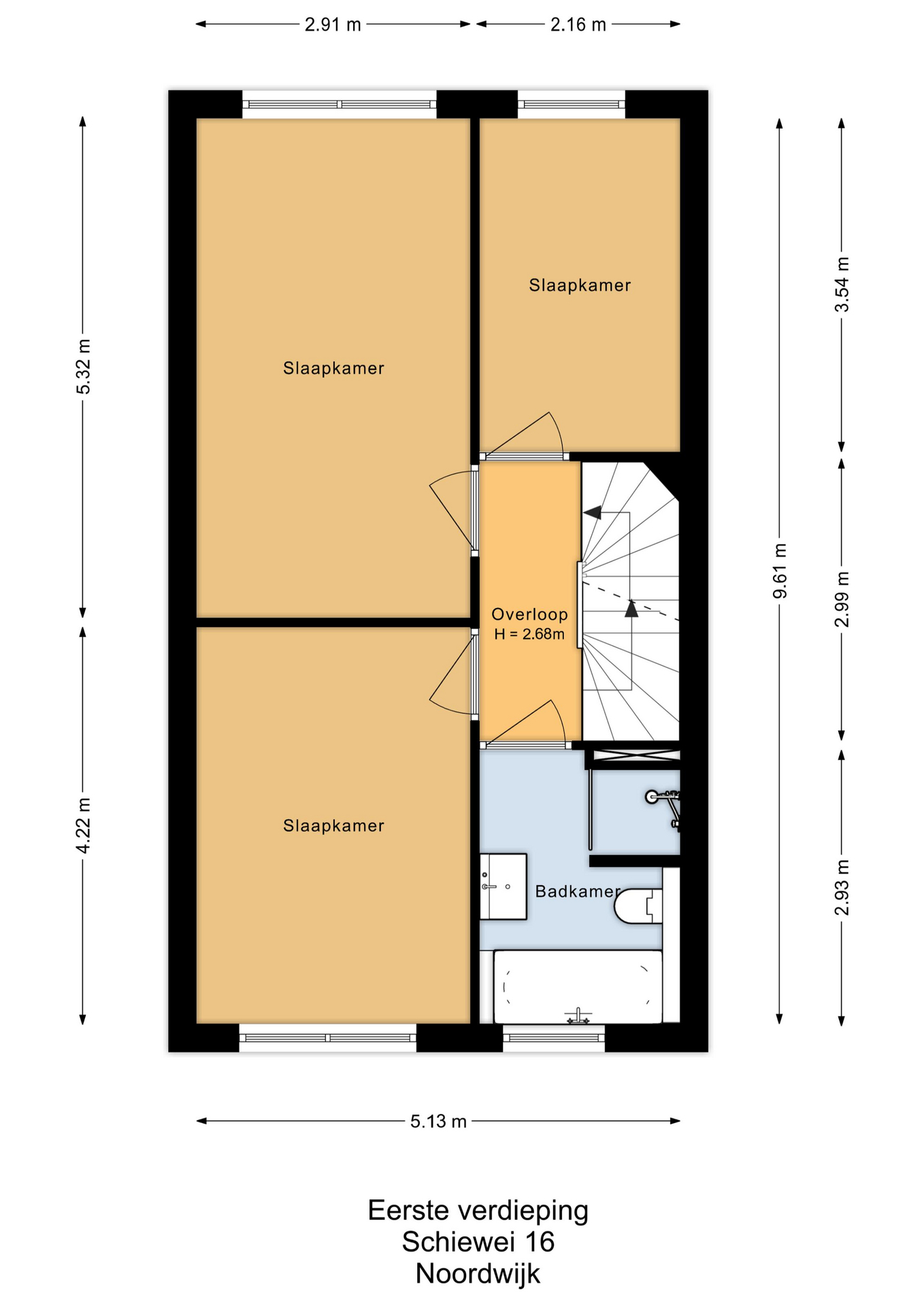
1e etage: overloop en 3 ruime slaapkamers, allen met nette laminaatvloer. De badkamer is fraai betegeld, beschikt over een draai-/kiepraam en een verlaagd plafond met dimbare spotjes. Uitgevoerd met ligbad, inloopdouche met handig nisje voor doucheproducten, 2e vrijhangend toilet, designradiator en een modern wastafelmeubel.

Zolder: vaste trap naar de ruime zolder met laminaatvloer en glad gestuukte wanden. Overloop met hoge nok en berging met aansluitingen voor wasapparatuur, mechanische ventilatie en cv-ketel. Aan de voorzijde een ruime slaapkamer met kunststof dakkapel, glad gestuukt plafond met dimbare spotjes en vlizotrap naar de bergvliering. Aan de achterzijde bevindt zich de vijfde slaapkamer, eveneens ruim, met Velux dakraam en glad gestuukt plafond met dimbare spotjes.

Kortom: een moderne, energiezuinige en ruime hoekwoning die helemaal af is. Zie jij jezelf hier komende lente al genieten? Maak snel een afspraak voor een bezichtiging!

Lees de volledige omschrijving

Kenmerken

Adres Schiewei 16
Postcode 2203 ZG
Plaats NOORDWIJK
Koopprijs € 839.500,-
Bouwjaar 2019
Woonoppervlakte 141 m2
Perceeloppervlakte 167 m2
Kamers 6
Slaapkamers 5
Energielabel

Plattegronden

JEL_7858klv
Kees SchaartRegister Makelaar en Register Taxateur

Is dit jouw droomwoning?

Neem contact op voor meer informatie of een bezichtiging.

Met 6 NVM-makelaars en 7 ondersteuners is er altijd iemand voor je beschikbaar, zodat we je persoonlijk verder kunnen helpen.

Veelgestelde vragen

Ook bij het kopen van een woonhuis of appartement is er een zekere consumentenbescherming. Dit betekent dat je als koper ook na het sluiten van de koopovereenkomst nog zonder opgave van redenen van de koop kan afzien. Dit is de wettelijke bedenktijd en geldt voor een periode van 3 werkdagen. Deze periode gaat in op het moment dat je als koper een kopie van de volledig getekende koopovereenkomst hebt ontvangen. De periode kan niet eindigen in het weekend en er mag maximaal 1 weekenddag meegeteld worden. Stel je ontvangt op donderdag een kopie van de volledig getekende koopovereenkomst. Dan eindigt je bedenktijd op maandag om 23.59 uur. Vrijdag is dag 1, weekend is dag 2 en maandag is dag 3. Er is niet bepaald hoe je de bedenktijd moet inroepen. Een simpel belletje zou dus al voldoende zijn. Wij adviseren je om in het geval je de bedenktijd wilt inroepen dit altijd schriftelijk te doen. Zo kan er nooit betwist worden of je het hebt ingeroepen en of je op tijd was.
Bij de onderhandeling kun je ontbindende voorwaarden meenemen. Een bekende ontbindende voorwaarde is de ontbindende voorwaarde voor het rondkrijgen van je hypotheek, al dan niet met Nationale Hypotheek Garantie. De overeengekomen ontbindende voorwaarde(n) worden vastgelegd in de koopovereenkomst. Wanneer je een ontbindende voorwaarde voor het verkrijgen van je hypotheek bent overeengekomen dan is daaraan ook een bedrag gekoppeld. Stel je hebt een hypotheek van € 300.000,- nodig om de woning te kunnen betalen, dan staat in de koopovereenkomst dat je de koop kunt ontbinden als er geen geldverstrekker is die je € 300.000,- wil financieren. Dit zal je echter wel goed gedocumenteerd moeten doen. Je moet kunnen aantonen dat je al het redelijk mogelijke hebt gedaan om de benodigde financiering te verkrijgen en je moet een afwijzing van de hypotheekaanvraag kunnen overleggen. Een ontbindende voorwaarde is altijd voor een bepaalde termijn. Houd deze termijn goed in de gaten, is de datum verstreken dan kun je geen beroep meer doen op de betreffende ontbindende voorwaarde. Op dat moment is de koop definitief. Andere bekende ontbindende voorwaarden zijn een bouwkundige keuring, het verkrijgen van een toestemming of vergunning voor een verbouwing of bijvoorbeeld een asbestonderzoek.
Simpel gezegd zijn roerende zaken die zaken die niet aard en nagelvast zitten. Over sommige zaken bestaat hierover geen twijfel, bijvoorbeeld een keuken. Maar let op, want losse keukenapparatuur is dan weer wel een roerende zaak. Bij aankoop van een huis of appartement maak je afspraken over deze roerende zaken, zodat achteraf geen discussie kan ontstaan over wat er wel en niet bij de woning zou achterblijven. Wij gebruiken hiervoor een zogeheten ‘Lijst van Zaken’. Die laten wij voorafgaand aan de verkoop door de verkoper invullen en voegen we bij de verkoopdocumentatie. Zo weet je als koper voordat je overeenstemming hebt met de verkoper welke zaken er wel en niet achterblijven.  Soms staan er op deze lijst roerende zaken ‘ter overname’. Wanneer je die als koper niet overneemt of hierover expliciet afspraken maakt, zal de verkoper deze zaken meenemen.
De dag waarop je de sleutel ontvangt, noemen wij de datum van oplevering. Op die dag ga je samen met de verkoper naar de notaris waarbij het eigendom officieel wordt overgedragen. Dit is het moment waarop de koper de woning betaalt en de verkoper de koopsom ontvangt. Na deze officiële handeling zul je als koper de sleutels ontvangen. Er is geen vaste termijn waarbinnen je als koper de sleutels krijgt, dit is afhankelijk van wat je als koper en verkoper met elkaar hebt afgesproken. Deze datum wordt vastgelegd in de koopovereenkomst en is onderdeel van de onderhandeling.
Van der Meer team

We helpen je graag met al je woonwensen.

Verstuurd!

Je bericht is verstuurd en we nemen zo snel mogelijk contact met je op.