Lisse – van der Veldstraat 1

van der Veldstraat 1

2161 ZC

LISSE

€ 405.000,-
k.k.

Beleef het comfort van wonen midden in het gezellige centrum van Lisse, zonder in te leveren op rust en privacy. Deze karaktervolle hoekwoning uit 1900, gelegen aan de rustige Van der Veldstraat, combineert ruimte, licht en mogelijkheden. Met een woonoppervlakte van 121 m² en diverse indelingsopties biedt dit huis een solide basis om geheel naar eigen wens te moderniseren of verder vorm te geven.
Aan de achterzijde bevindt zich een praktische achterbouw met op de begane grond een wasruimte en daarboven een extra kamer met toegang tot een zonnig dakterras. De ruimte is nog niet geïsoleerd, maar biedt volop potentie voor wie er iets unieks van wil maken, denk aan een werkplek, hobbyruimte of sfeervolle logeerkamer.

Indeling
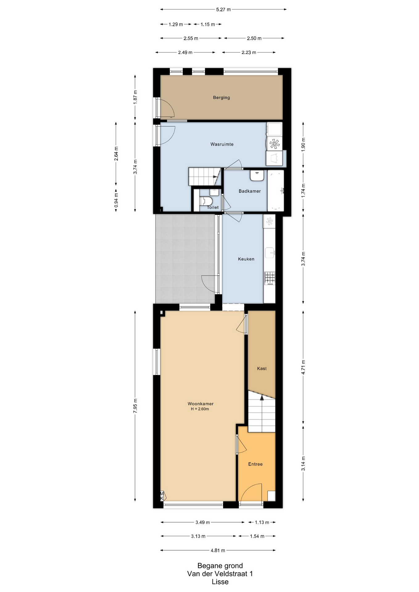
Begane grond
De sfeervolle woonkamer geniet van veel daglicht dankzij de hoekligging. Aangrenzend ligt de semi-open keuken, uitgevoerd met inbouwapparatuur. Op de begane grond bevindt zich tevens de badkamer, uitgerust met een ligbad, toilet en wastafel. Achter in de woning ligt de achterbouw, binnendoor en buitenom bereikbaar, momenteel in gebruik als wasruimte, met op de verdieping een extra kamer en toegang tot het zonnige dakterras.

Eerste verdieping
De eerste verdieping beschikt over twee ruime slaapkamers. De vertrekken zijn praktisch ingedeeld en bieden voldoende ruimte voor slaap-, werk- of hobbyfuncties. Op deze verdieping bevindt zich ook een tweede badkamer met douche, toilet en wastafel.

Buitenruimte
De woning biedt meerdere buitenruimtes: een beschutte binnenplaats die perfect is voor een intieme zithoek, én een zonneterras op de verdieping. Daarnaast is er een aangebouwde stenen berging met elektriciteit.

Bijzonderheden:
• Woonoppervlakte 121 m²;
• Perceeloppervlakte 135 m²;
• Inhoud 432 m³;
• Bouwjaar 1900;
• Dubbele beglazing aanwezig;
• Totaal 4 kamers, waarvan 3 slaapkamers;
• Extra kamer in de achterbouw met toegang tot het dakterras;
• Gelegen aan een rustige straat, in het centrum van Lisse;
• Aangebouwde stenen berging met elektriciteit;
• Beschutte binnenplaats en zonnig dakterras.

Lees de volledige omschrijving

Kenmerken

Adres van der Veldstraat 1
Postcode 2161 ZC
Plaats LISSE
Koopprijs € 405.000,-
Bouwjaar 1900
Woonoppervlakte 121 m2
Perceeloppervlakte 135 m2
Kamers 4
Slaapkamers 3
Energielabel

Plattegronden

No data was found

Is dit jouw droomwoning?

Neem contact op voor meer informatie of een bezichtiging.

Met 6 NVM-makelaars en 7 ondersteuners is er altijd iemand voor je beschikbaar, zodat we je persoonlijk verder kunnen helpen.

Veelgestelde vragen

Ook bij het kopen van een woonhuis of appartement is er een zekere consumentenbescherming. Dit betekent dat je als koper ook na het sluiten van de koopovereenkomst nog zonder opgave van redenen van de koop kan afzien. Dit is de wettelijke bedenktijd en geldt voor een periode van 3 werkdagen. Deze periode gaat in op het moment dat je als koper een kopie van de volledig getekende koopovereenkomst hebt ontvangen. De periode kan niet eindigen in het weekend en er mag maximaal 1 weekenddag meegeteld worden. Stel je ontvangt op donderdag een kopie van de volledig getekende koopovereenkomst. Dan eindigt je bedenktijd op maandag om 23.59 uur. Vrijdag is dag 1, weekend is dag 2 en maandag is dag 3. Er is niet bepaald hoe je de bedenktijd moet inroepen. Een simpel belletje zou dus al voldoende zijn. Wij adviseren je om in het geval je de bedenktijd wilt inroepen dit altijd schriftelijk te doen. Zo kan er nooit betwist worden of je het hebt ingeroepen en of je op tijd was.
Bij de onderhandeling kun je ontbindende voorwaarden meenemen. Een bekende ontbindende voorwaarde is de ontbindende voorwaarde voor het rondkrijgen van je hypotheek, al dan niet met Nationale Hypotheek Garantie. De overeengekomen ontbindende voorwaarde(n) worden vastgelegd in de koopovereenkomst. Wanneer je een ontbindende voorwaarde voor het verkrijgen van je hypotheek bent overeengekomen dan is daaraan ook een bedrag gekoppeld. Stel je hebt een hypotheek van € 300.000,- nodig om de woning te kunnen betalen, dan staat in de koopovereenkomst dat je de koop kunt ontbinden als er geen geldverstrekker is die je € 300.000,- wil financieren. Dit zal je echter wel goed gedocumenteerd moeten doen. Je moet kunnen aantonen dat je al het redelijk mogelijke hebt gedaan om de benodigde financiering te verkrijgen en je moet een afwijzing van de hypotheekaanvraag kunnen overleggen. Een ontbindende voorwaarde is altijd voor een bepaalde termijn. Houd deze termijn goed in de gaten, is de datum verstreken dan kun je geen beroep meer doen op de betreffende ontbindende voorwaarde. Op dat moment is de koop definitief. Andere bekende ontbindende voorwaarden zijn een bouwkundige keuring, het verkrijgen van een toestemming of vergunning voor een verbouwing of bijvoorbeeld een asbestonderzoek.
Simpel gezegd zijn roerende zaken die zaken die niet aard en nagelvast zitten. Over sommige zaken bestaat hierover geen twijfel, bijvoorbeeld een keuken. Maar let op, want losse keukenapparatuur is dan weer wel een roerende zaak. Bij aankoop van een huis of appartement maak je afspraken over deze roerende zaken, zodat achteraf geen discussie kan ontstaan over wat er wel en niet bij de woning zou achterblijven. Wij gebruiken hiervoor een zogeheten ‘Lijst van Zaken’. Die laten wij voorafgaand aan de verkoop door de verkoper invullen en voegen we bij de verkoopdocumentatie. Zo weet je als koper voordat je overeenstemming hebt met de verkoper welke zaken er wel en niet achterblijven.  Soms staan er op deze lijst roerende zaken ‘ter overname’. Wanneer je die als koper niet overneemt of hierover expliciet afspraken maakt, zal de verkoper deze zaken meenemen.
De dag waarop je de sleutel ontvangt, noemen wij de datum van oplevering. Op die dag ga je samen met de verkoper naar de notaris waarbij het eigendom officieel wordt overgedragen. Dit is het moment waarop de koper de woning betaalt en de verkoper de koopsom ontvangt. Na deze officiële handeling zul je als koper de sleutels ontvangen. Er is geen vaste termijn waarbinnen je als koper de sleutels krijgt, dit is afhankelijk van wat je als koper en verkoper met elkaar hebt afgesproken. Deze datum wordt vastgelegd in de koopovereenkomst en is onderdeel van de onderhandeling.
Van der Meer team

We helpen je graag met al je woonwensen.

Verstuurd!

Je bericht is verstuurd en we nemen zo snel mogelijk contact met je op.